English
Prijsverlaging:Wittenburg 17, 2135 BC Hoofddorp - Foto
Prijsverlaging
+30

Wittenburg 17 2135 BC Hoofddorp € 675.000,- k.k.

  • Woonhuis
  • 5 kamers
  • 4 slaapkamers
  • 1 badkamer
  • Bouwjaar 2006
  • 143 m² perceeloppervlakte
  • 148 m² gebruiksoppervlakte
  • Gestoffeerd
  • A Energielabel A

Beschrijving

Een modern, licht en comfortabel gezinshuis met 148 m² woonoppervlakte , een fijne indeling over drie woonlagen, vier slaapkamers, een diepe achtertuin en als uniek pluspunt: gratis parkeren voor de deur! Met energielabel A, hoogwaardige bouwkwaliteit en een rustige, kindvriendelijke omgeving vormt dit een ideaal thuis voor zowel gezinnen als voor mensen die gelijkvloerse toegankelijkheid wensen. En dit alles op loopafstand van de bijzonder geliefde Toolenburgse plas.

OPEN HUIS – 28 MAART van 11:00 tot 15:00 uur
Tijdens de Open Huizen Dag ben je van harte welkom om deze woning vrijblijvend te bezichtigen, zonder afspraak.
De eigenaar zal je persoonlijk rondleiden en meer vertellen over de woning en het woonplezier in de omgeving.

Deze moderne woning uit 2006 combineert ruimte, comfort en gebruiksgemak op een uitzonderlijke manier. De ingebouwde huislift maakt de woning zowel geschikt voor valide én minder valide bewoners. De lift kan blijven, maar kan – indien gewenst – ook worden verwijderd.

De ruime woonkamer met openslaande deuren naar de tuin, de vier goed bemeten slaapkamers en de praktische tweede verdieping maken het geheel tot een heerlijke gezinswoning. Dankzij de uitstekende isolatie, HR++ glas en moderne bouwkwaliteit is het bovendien een bijzonder stille woning: je hoort vrijwel niets van de buren.

BUURT EN OMGEVING
De woning bevindt zich op een uitzonderlijk aantrekkelijke locatie in Toolenburg-West. Binnen enkele tientallen meters wandel je zo het recreatiegebied rond de Toolenburger Plas in — een geliefde plek waar bewoners komen om te sporten, wandelen, zwemmen, ontspannen of neer te strijken bij één van de horecagelegenheden aan het water. Deze directe toegang tot natuur en recreatie maakt de ligging van de woning uniek in Hoofddorp.

Daarnaast ligt winkelcentrum Toolenburg op loopafstand, waardoor dagelijkse boodschappen en diverse speciaalzaken altijd binnen handbereik zijn. Ook scholen, kinderopvang en meerdere sportverenigingen bevinden zich in de directe omgeving. Met de komst van het nabijgelegen Park21, dat zich de komende jaren verder ontwikkelt tot een groot en veelzijdig recreatie- en natuurgebied, wordt de leefomgeving nóg aantrekkelijker.

De wijk is ontworpen als een eigentijdse, groene tuinwijk met brede straten, speelplekken en alle denkbare voorzieningen binnen handbereik. Rust, ruimte en overzichtelijkheid zijn kenmerkend voor deze buurt.

Kortom: een rustige en groene woonomgeving met een uitzonderlijke combinatie van recreatie, voorzieningen en bereikbaarheid.

Op korte afstand van de woning bevinden zich:
• Winkelcentrum Toolenburg, met onder andere supermarkt, verswinkels, drogist en horecagelegenheden.
• Meerdere basisscholen, middelbare scholen en kinderopvanglocaties.
• De populaire recreatieplas Toolenburgerplas, ideaal voor wandelen, zwemmen, sporten en ontspannen.
• Sportvoorzieningen zoals voetbalvelden, fitnesslocaties en tennisbanen.
• Goede aansluiting op het openbaar vervoer, met haltes richting Haarlem, Schiphol, Amsterdam en Leiden.
• Snelle verbindingen met de A4, A5 en N201, waardoor autoverkeer uitstekend is ontsloten.

Toolenburg-West is een rustige, veilige en kindvriendelijke woonomgeving met volwassen groen, waterpartijen en een gevarieerde samenstelling van bewoners. De wijk is volledig ontwikkeld en staat bekend om haar prettige leefklimaat.

Indeling

Begane grond
Entree met hal en toilet. Lichte tuingerichte woonkamer met openslaande deuren naar de achtertuin. Aan de voorzijde bevindt zich de ruime keuken. De huislift is vanaf deze verdieping toegankelijk.

Eerste verdieping
Overloop met toegang tot drie slaapkamers en de badkamer met douche, wastafel en toilet. Ook op deze verdieping komt de lift uit.

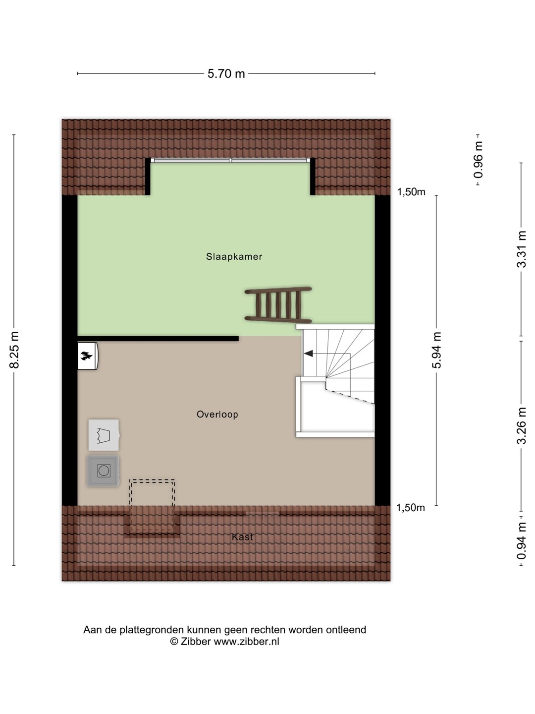
Tweede verdieping
Grote vierde slaapkamer/werkruimte, aparte was-/bergruimte. Tevens is hier een behoorlijke vliering, welke extra opslagmogelijkheden biedt.

Tuin

De woning beschikt over zowel een voor- en een achtertuin. De achtertuin, met een achterom, is heerlijk diep te noemen, is voorzien van een stenen berging en biedt volop mogelijkheden voor verschillende zitplekken, speelruimte of een groene inrichting. De achtertuin is op het Noord-Westen gelegen, zon in de namiddag en vroege avonden.

Bijzonderheden

• Bouwjaar 2006
• Woonoppervlakte 148m² (NEN2580)
• Perceeloppervlakte 143 m²
• Energielabel A, HR++ beglazing
• Huislift aanwezig (kan worden verwijderd), woning is levensloopbestendig
• Vier slaapkamers
• Externe berging (6 m²)
• Rustige, kindvriendelijke omgeving
• Gratis parkeren

Ben je op zoek naar een ruime, moderne en comfortabele woning die ook nog eens volledig toekomstbestendig is? Dan is Wittenburg 17 zeker een bezichtiging waard. Maak snel een afspraak en ervaar zelf het woongenot van deze fijne en flexibel te gebruiken woning in het hart van Toolenburg!

Kaart

Kenmerken

Overdracht

Referentienummer
01343
Vraagprijs
€ 675.000,- k.k.
Elektra
€ 100,-
Gas
€ 100,-
Water
€ 45,-
Inrichting
Ja
Inrichting
Gestoffeerd
Status
Prijsverlaging
Aanvaarding
In overleg
Aangeboden sinds
Maandag 2 februari 2026
Laatste wijziging
Vrijdag 20 maart 2026

Bouw

Type object
Woonhuis, eengezinswoning, tussenwoning
Soort bouw
Bestaande bouw
Toegankelijkheid
Mindervaliden
Senioren
Bouwperiode
2006
Keurmerken
Aangepaste woning
Isolatievormen
Dubbel glas
HR-glas
Volledig geïsoleerd

Oppervlaktes en inhoud

Perceeloppervlakte
143 m²
Woonoppervlakte
148 m²
Inhoud
537 m³
Oppervlakte overige inpandige ruimten
3,5 m²
Oppervlakte externe bergruimte
6 m²

Indeling

Aantal bouwlagen
3
Aantal kamers
5 (waarvan 4 slaapkamers)
Aantal badkamers
1 (en 1 apart toilet)

Locatie

Ligging
Aan park
Aan rustige weg
Dichtbij openbaar vervoer
In woonwijk
Nabij school
Nabij snelweg
Zelfstandig

Tuin

Type
Achtertuin
Hoofdtuin
Ja
Oriëntering
Noord west
Heeft een achterom
Ja
Staat
Prachtig aangelegd
Tuin 2 - Type
Achtertuin
Tuin 2 - Oriëntering
Zuidoost
Tuin 2 - Staat
Prachtig aangelegd

Energieverbruik

Energielabel
A

CV ketel

CV ketel
ATAG E325EC
Warmtebron
Gas
Bouwjaar
2015
Combiketel
Ja
Eigendom
Huur

Uitrusting

Warm water
CV-ketel
Verwarmingssysteem
Centrale verwarming
Ventilatie methode
Mechanische ventilatie
Heeft kabel-tv
Ja
Tuin aanwezig
Ja
Heeft schuur/berging
Ja
Heeft ventilatie
Ja

Kadastrale gegevens

Kadastrale aanduiding
Haarlemmermeer Q 3499
Perceeloppervlakte
143 m²
Omvang
Geheel perceel
Eigendomsituatie
Eigen grond

Brochure(s) en overige bijlagen

Brochure.pdf Download