Beschrijving
English below:
Luxe wonen in het bruisende hart van Hoofddorp – met adembenemend panorama uitzicht
Aan de prestigieuze Marktlaan 13-C bevindt zich dit uitzonderlijke topappartement, een unieke woonbeleving midden in het centrum van Hoofddorp. Dit hoogwaardige appartement combineert modern comfort met een exclusieve uitstraling en biedt daarbij een ongeëvenaard uitzicht over de skyline van Hoofddorp.
Bij aankomst betreedt u de representatieve entree op de begane grond, voorzien van een modern intercomsysteem. Via de liftinstallatie of het trappenhuis bereikt u comfortabel de vijfde verdieping, waar het recent geplaatste glazen atrium direct een elegante en lichte indruk achterlaat.
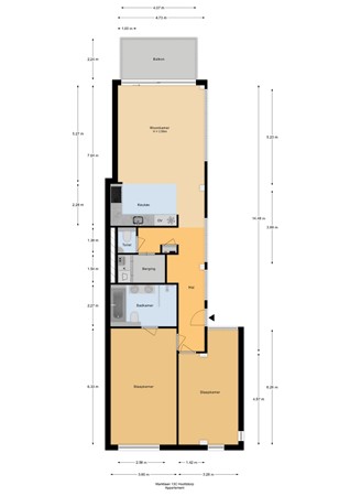
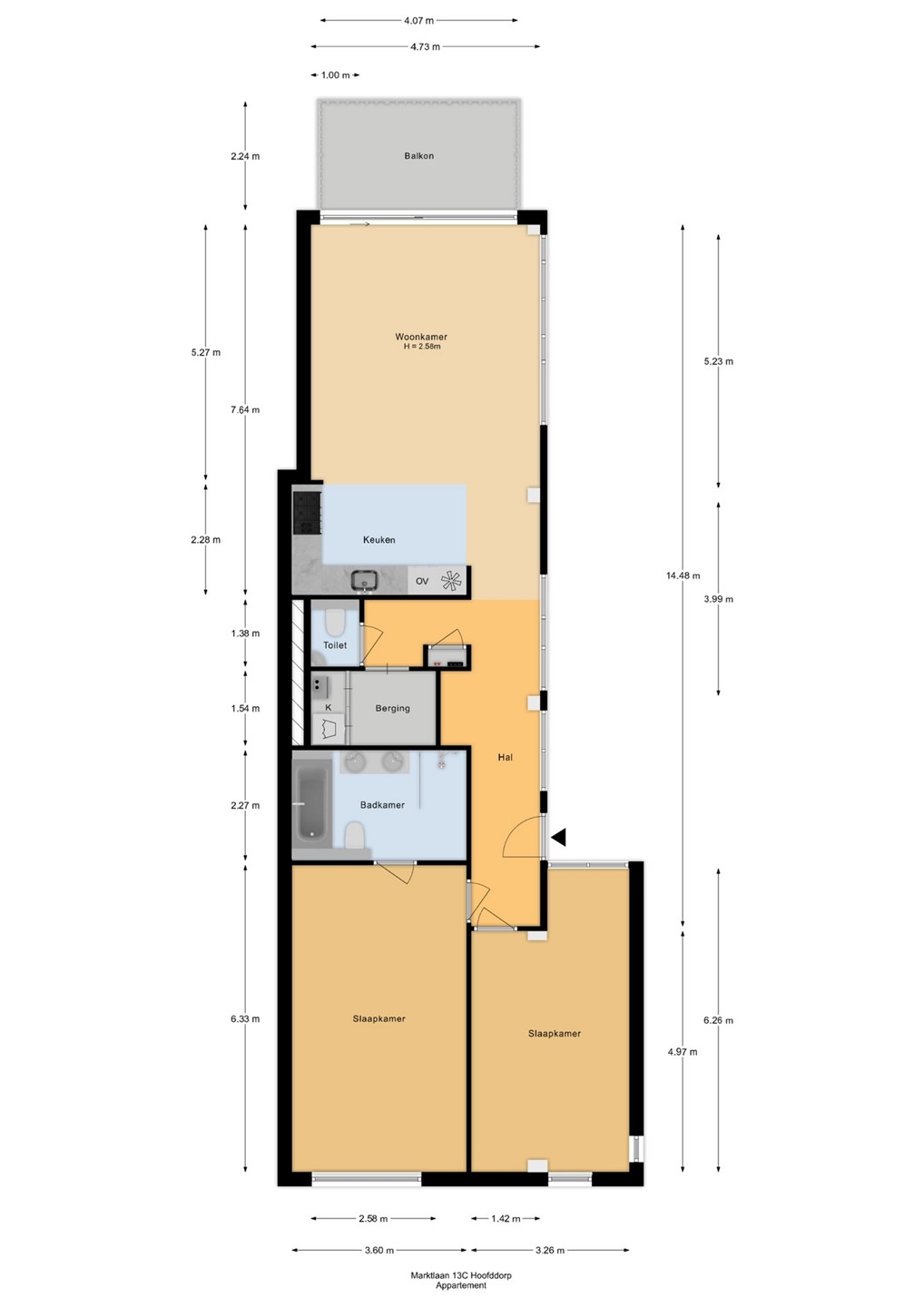
Via de entree van het appartement stapt u binnen in een riante hal, die op stijlvolle wijze toegang biedt tot alle vertrekken. In de hal bevinden zich tevens een luxe separaat toilet, evenals een bergruimte waar de technische installaties en de wasmachine-opstelling zijn ondergebracht.
Indeling
Het appartement beschikt over twee slaapkamers, waarvan de ruime hoofdslaapkamer een serene en comfortabele ambiance heeft. Deze kamer is voorzien van een grote schuifpui, waardoor de ochtendzon de ruimte prachtig binnenvalt. Vanuit deze slaapkamer bereikt u direct de moderne en luxe uitgevoerde badkamer, die is uitgerust met vloerverwarming, toilet, een riante inloopdouche v.v. een regendouche met glazen wand, een comfortabel ligbad, een elegant dubbel wastafelmeubel v.v. twee waskommen en een verwarmde spiegel met ingebouwde verlichting. De tweede slaapkamer is flexibel in te richten en daarmee ideaal als gastenkamer, studeerkamer of werkkamer.
Living & Keuken
De zeer riante living vormt het hart van de woning en wordt gekenmerkt door een grote raampartij die zorgt voor een overvloed aan natuurlijk licht. De stijlvolle open keuken sluit naadloos aan op de leefruimte en is modern uitgevoerd met hoogwaardige inbouwapparatuur zoals oa een ingebouwde wijnklimaatkast. Een ideale plek voor wie graag kookt in een luxe en comfortabele omgeving. Vanuit de living heeft u direct toegang tot het terras van circa 10 m². Hier kunt u vanaf de late middag tot diep in de avond genieten van het fantastische, wijdse uitzicht over Hoofddorp, een perfecte plek om te ontspannen en te genieten.
Locatie
De ligging van het appartement is werkelijk ideaal. Op steenworp afstand bevindt zich het in 1935 aangelegde ‘Stadspark van Hoofddorp’, een groene en rustgevende plek voor wandelingen en recreatie. Sportievelingen kunnen terecht bij tennisvereniging TVH, eveneens op korte afstand.
Daarnaast bevindt u zich in het levendige hart van Hoofddorp, met een breed en gevarieerd aanbod aan winkels en horecagelegenheden. Restaurants en cafés zoals Elf, Zoet en Zalig, Mooca en Polderboom bieden volop mogelijkheden om te genieten van een gezellig ontbijt, lunch of diner en dat allemaal op loopafstand.
Het lokale openbaar vervoer bevindt zich eveneens om de hoek, met bushaltes op loopafstand. Het treinstation van Hoofddorp ligt op korte afstand en biedt uitstekende verbindingen richting Amsterdam, Schiphol en Leiden. Bovendien zijn de belangrijkste uitvalswegen eenvoudig bereikbaar: via de A4 rijdt u snel richting Amsterdam, Schiphol, Haarlem en Den Haag, wat deze locatie perfect maakt voor forenzen en reizigers.
Algemeen:
- Bouwjaar 2004, volledig gerenoveerd in 2021;
- Bruto vloeroppervlak 123m2, inhoud 356m3;
- Woonoppervlakte 124m2, terras 9m2, Energielabel B, Intergas CV ketel 2021;
- 3x airconditioning in beide slaapkamers en woonkamer, vloerverwarming gehele woning;
- het gehele appartement is voorzien van een luxe Italiaanse natuurstenen vloer;
- Buitenschilderwerk gedaan 2025;
- Professionele VVE (VVE.nl), actieve VVE, maandelijkse bijdrage €. 274,11;
- Berging in de onderbouw, eventueel parkeerplaats beschikbaar(kosten in overleg);
Marktlaan 13-C is niet zomaar een appartement; het is een exclusieve woonbeleving op hoog niveau, waar luxe, licht, uitzicht en stedelijke dynamiek samenkomen op een van de mooiste plekken van Hoofddorp.
---
English:
Luxury living in the vibrant heart of Hoofddorp – with breathtaking panoramic views
Located at the prestigious Marktlaan 13-C, this exceptional penthouse apartment offers a unique living experience right in the center of Hoofddorp. This high-quality residence combines modern comfort with an exclusive appearance and boasts unparalleled views over the Hoofddorp skyline.
Upon arrival, you enter the representative ground-floor entrance, equipped with a modern intercom system. Via the elevator or staircase, you comfortably reach the fifth floor, where the recently installed glass atrium immediately creates an elegant and light-filled impression.
Entering the apartment, you step into a spacious hallway that provides stylish access to all rooms. The hallway also features a luxurious separate toilet and a storage room housing the technical installations and washing machine setup.
Layout:
The apartment features two bedrooms, including a spacious master bedroom with a serene and comfortable atmosphere. This room is fitted with large sliding doors, allowing the morning sun to flood the space beautifully. From the master bedroom, you have direct access to the modern and luxuriously finished bathroom, which is equipped with underfloor heating, a toilet, a generous walk-in shower with a rainfall shower and glass partition, a comfortable bathtub, an elegant double vanity unit with two washbasins, and a heated mirror with integrated lighting. The second bedroom is flexibly designed, making it ideal for use as a guest room, study, or home office.
Living Area & Kitchen:
The exceptionally spacious living area forms the heart of the home and is characterized by large windows that provide an abundance of natural light. The stylish open-plan kitchen connects seamlessly with the living space and features a modern design with high-quality built-in appliances, including, among others, an integrated wine climate cabinet. This is an ideal setting for those who enjoy cooking in a luxurious and comfortable environment.
From the living area, you have direct access to the terrace of approximately 10 m². From late afternoon until well into the evening, you can enjoy the fantastic, expansive views over Hoofddorp an ideal place to relax and unwind.
Location:
The location of this apartment is truly ideal. Just a stone’s throw away is the Hoofddorp City Park, laid out in 1935, a green and tranquil area perfect for walks and recreation. Sports enthusiasts will appreciate the nearby tennis club TVH, also within short distance.
In addition, you are situated in the lively center of Hoofddorp, offering a wide and varied selection of shops and dining establishments. Restaurants and cafés such as Elf, Zoet en Zalig, Mooca, and Polderboom are all within walking distance, providing plenty of options for breakfast, lunch, or dinner.
Public transport is also close by, with bus stops within walking distance. Hoofddorp train station is nearby and offers excellent connections to Amsterdam, Schiphol, and Leiden. Major highways are easily accessible as well: via the A4, you can quickly reach Amsterdam, Schiphol, Haarlem, and The Hague, making this location perfect for commuters and frequent travelers.
General:
-Year of construction: 2004, fully renovated in 2021;
-Gross floor area: 123 m², volume: 356 m³;
-Living area: 124 m², terrace: 9 m², energy label B, Intergas central heating boiler (2021);
-Three air-conditioning units (both bedrooms and living room), underfloor heating throughout the entire apartment;
-The entire apartment is finished with a luxurious Italian natural stone floor;
-Exterior painting completed in 2025;
-Professionally managed HOA (VVE.nl), active HOA, monthly contribution €274.11;
-Storage unit in the basement, optional parking space available (costs upon request);
Marktlaan 13-C is not just an apartment; it is an exclusive, high-end living experience where luxury, light, views, and urban vibrancy come together in one of the most beautiful locations in Hoofddorp.