English
Koop:Van Oldenbarneveldtstraat 58-1, 1052 KC Amsterdam - Foto
+20

Van Oldenbarneveldtstraat 58-1 1052 KC Amsterdam € 425.000,- k.k.

  • Appartement
  • 2 kamers
  • 1 slaapkamer(s)
  • Bouwjaar 1886
  • 42 m² gebruiksoppervlakte
  • D Energielabel D

Beschrijving

English see below!

Van Oldenbarneveldtstraat 58-1 – charmant 2-kamerappartement met berging in hartje Amsterdam! Op een geweldige locatie, midden in de geliefde Frederik Hendrikbuurt, ligt dit sfeervolle 2-kamerappartement met berging aan de Van Oldenbarneveldtstraat 58-1 hoog. Een ideale plek voor wie de levendigheid van de stad zoekt, maar ook waarde hecht aan comfort en rust.

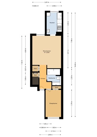
Indeling:
Via het gemeenschappelijke trappenhuis bereik je de entree van de woning op de eerste verdieping. Vanuit de hal heb je toegang tot alle vertrekken van het appartement.

Aan de straatzijde bevindt zich de ruime slaapkamer, met een prettig uitzicht op de levendige Van Oldenbarneveldtstraat. Aan de achterzijde ligt de lichte woonkamer met zicht op de rustige binnentuin – een heerlijke plek om te ontspannen na een drukke dag.

De halfopen keuken grenst direct aan de woonkamer en is uitgerust met de nodige apparatuur, waaronder een oven, afzuigunit, 4-pits gasfornuis en een vrijstaande koelkast.

De woning beschikt daarnaast over een luxe en moderne badkamer, voorzien van een hangend toilet, een riant wastafelmeubel en een ligbad met douche. De inbouwspots zorgen voor een strakke, stijlvolle afwerking en aangename verlichting.

Verder zijn er in de woning twee ingebouwde kasten aanwezig, die voor voldoende bergruimte zorgen. Op de zolderverdieping bevindt zich bovendien een ruime berging, ideaal voor het opslaan van spullen of het stallen van fietsen.

Ligging en omgeving
De woning is perfect gelegen: op steenworp afstand vind je gezellige cafés, diverse horecagelegenheden en winkels voor de dagelijkse boodschappen. In de directe omgeving liggen de Tweede Hugo de Grootstraat, Bilderdijkstraat en De Clercqstraat – straten die bekendstaan om hun levendige sfeer, hippe koffiezaken, speciaalzaken en culinaire hotspots.

Voor een ommetje of een zomerse picknick ligt ook het Westerpark op korte afstand, en met de fiets sta je binnen 10 minuten in de Jordaan of aan de grachtengordel. De buurt combineert zo het beste van twee werelden: de charme van oud-Amsterdam met de gemakken van modern stadsleven.

Bereikbaarheid
De woning is uitstekend bereikbaar. Diverse tram- en busverbindingen brengen je binnen enkele minuten naar het Centraal Station of andere delen van de stad. Bovendien ben je met de auto via de Ring A10 snel de stad in en uit.

Kortom
Een sfeervol en goed ingedeeld appartement op een toplocatie in Amsterdam – ideaal voor starters, young professionals of als pied-à-terre in de stad. De combinatie van comfort, luxe afwerking, uitstekende bereikbaarheid en de nabijheid van de Jordaan en het Westerpark maken dit een woning die je gezien moet hebben!

Bijzonderheden:
-Woonoppervlakte 42m², inhoud 142 m³
-Bouwjaar 1906, eigen grond
-Gehele woning in 2025 geschilderd (binnenzijde)
-VVE bijdrage €.95,00 per maand
-Extra berging op de zolder van ca. 6m2
-Vraagprijs €. 425.000,= kosten koper
-Oplevering kan spoedig!

====

English

Van Oldenbarneveldtstraat 58-1 – charming one-bedroom apartment with storage in the heart of Amsterdam. In a prime location, right in the popular Frederik Hendrikbuurt, you’ll find this charming one-bedroom apartment with private storage at Van Oldenbarneveldtstraat 58-1. An ideal home for those who enjoy the city’s vibrant atmosphere but also appreciate comfort and tranquility.

Layout:
The apartment is accessed via a shared staircase leading to the entrance on the first floor. From the hallway, you have access to all rooms.

At the front of the apartment is the spacious bedroom, offering a pleasant view of the lively Van Oldenbarneveldtstraat. At the rear, the bright living room overlooks the quiet courtyard garden — a perfect place to unwind after a busy day.

The semi-open kitchen adjoins the living area and is equipped with essential appliances, including an oven, extractor hood, four-burner gas stove, and a freestanding refrigerator.

The apartment also features a modern and luxurious bathroom, complete with a wall-mounted toilet, large vanity unit, and a bathtub with shower. Recessed ceiling lights provide stylish, atmospheric illumination and a sleek finish.

There are also two built-in closets offering ample storage space. Additionally, a spacious attic storage room is available — ideal for storing belongings or bicycles.

Location and surroundings:
The apartment is perfectly situated: just steps away from cozy cafés, a wide variety of restaurants, and shops for daily necessities. Nearby streets such as Tweede Hugo de Grootstraat, Bilderdijkstraat, and De Clercqstraat are known for their lively atmosphere, trendy coffee bars, boutique stores, and culinary hotspots.

For outdoor recreation, the Westerpark is just a short walk or bike ride away. In only 10 minutes by bike, you can reach the Jordaan or the historic canal district. This neighborhood perfectly combines the charm of old Amsterdam with the conveniences of modern city living.

Accessibility:
The apartment is easily accessible by public transport, with several tram and bus connections nearby that take you quickly to Amsterdam Central Station and other parts of the city. By car, the A10 ring road can be reached within minutes.

In summary:
A bright and well-laid-out apartment in a prime Amsterdam location — ideal for starters, young professionals, or as a pied-à-terre in the city. The combination of comfort, modern finishes, excellent accessibility, and proximity to both the Jordaan and Westerpark make this a home not to be missed!

Details:
Living area: 42 m², volume: 142 m³
Year of construction: 1906, freehold property (no ground lease)
Entire interior repainted in 2025
Homeowners’ association (VvE) contribution: €95.00 per month
Additional attic storage space of approx. 6 m²
Asking price: €425,000, buyer’s costs apply
Quick delivery possible!

Kaart

Kenmerken

Overdracht

Referentienummer
07381
Vraagprijs
€ 425.000,- k.k.
Servicekosten
€ 95,-
Aanvaarding
In overleg
Aangeboden sinds
Vrijdag 31 oktober 2025

Bouw

Type object
Appartement, portiekwoning
Woonlaag
2e woonlaag
Soort bouw
Bestaande bouw
Bouwperiode
1886
Type dak
Samengesteld
Isolatievormen
Dubbel glas

Oppervlaktes en inhoud

Woonoppervlakte
42 m²
Inhoud
142 m³
Oppervlakte overige inpandige ruimten
6 m²

Indeling

Aantal bouwlagen
1
Aantal kamers
2 (waarvan 1 slaapkamer)

Locatie

Ligging
Aan rustige weg
Dichtbij openbaar vervoer
In woonwijk

Energieverbruik

Energielabel
D

CV ketel

CV ketel
Intergas
Warmtebron
Gas
Combiketel
Ja
Eigendom
Eigendom

Uitrusting

Warm water
CV-ketel
Verwarmingssysteem
Centrale verwarming
Heeft schuur/berging
Ja

Vereniging van Eigenaren

Jaarlijkse vergadering
Ja
Periodieke bijdrage
Ja
Reservefonds
Ja
Meer jaren onderhoudsplan
Ja
Opstal verzekering
Ja

Kadastrale gegevens

Kadastrale aanduiding
Amsterdam Q 7270
Omvang
Appartementsrecht of complex
Eigendomsituatie
Eigen grond

Media

Plattegronden