English
Onder bod:Oude Looiersstraat 22H, 1016 VJ Amsterdam - Foto
Onder bod
+22

Oude Looiersstraat 22H 1016 VJ Amsterdam € 510.000,- k.k.

  • Appartement
  • 2 kamers
  • 1 slaapkamer(s)
  • 1 badkamer
  • Bouwjaar 1838
  • 61 m² perceeloppervlakte
  • 53 m² gebruiksoppervlakte
  • C Energielabel C

Beschrijving

- English text below -

Deze charmante begane grond woning van circa 53 m² met patio en eigen entree is gelegen midden in de geliefde Jordaan, in het hart van stadsdeel Amsterdam Centrum!

Het goed onderhouden appartement, gelegen op eigen grond, beschikt over een lichte woonkamer met open keuken, een moderne badkamer, een ruime slaapkamer en een fijne patio waar je in de middag heerlijk van de zon kunt genieten. In 2009 is het gehele complex grondig gerenoveerd, waarbij tevens de fundering is vernieuwd.

De ligging is werkelijk ideaal. Om de hoek bevinden zich de Elandsgracht en de sfeervolle “Negen Straatjes”, bekend om hun unieke winkels, gezellige cafés en uitstekende restaurants. Het Anne Frank Huis en de imposante Westerkerk liggen op enkele minuten loopafstand. Daarnaast zijn het Westerpark, het Vondelpark en het Museumplein snel en eenvoudig te bereiken. Ook de bereikbaarheid is uitstekend, met diverse tram-, bus-, metro- en treinverbindingen (Centraal Station) in de directe omgeving.

Ben je op zoek naar een sfeervol appartement midden in het centrum, met een eigen buitenruimte én de rust van een beschutte ligging, terwijl alle voorzieningen binnen handbereik zijn? Dan is dit jouw kans!

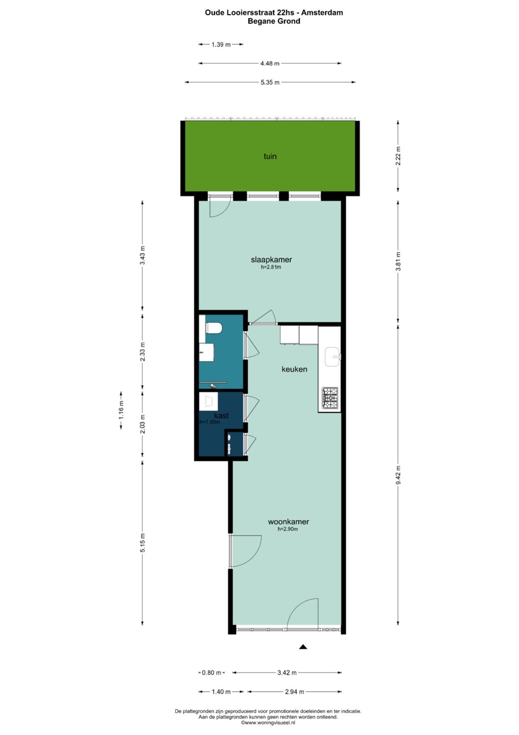
Indeling:
Eigen entree met toegang tot de woning op de begane grond. Daarnaast is er een tweede toegangsdeur via het gezamenlijke trappenhuis.
Wat meteen opvalt, is de unieke raampartij aan de voorzijde, die zorgt voor een authentieke uitstraling.
Bij binnenkomst stap je in de lichte woonkamer met open keuken, gelegen aan de achterzijde van de woning. De keuken is voorzien van diverse inbouwapparatuur, waaronder een 5-pits gasfornuis, RVS-afzuigkap, vaatwasser, koel-/vriescombinatie en een combi-oven/magnetron.
De badkamer is uitgerust met een inloopdouche, wastafelmeubel en toilet. Naast de badkamer bevindt zich een ruime bergkast met aansluitingen voor de wasmachine en de cv-ketel.
De royale slaapkamer ligt aan de achterzijde, beschikt over twee ruime kledingkasten en biedt toegang tot de patio.
Het grootste deel van de woning is voorzien van een fraaie eikenhouten vloer.

Bijzonderheden:
- Gelegen op eigen grond, geen erfpacht;
- Woonoppervlakte ca. 53 m2
- Besloten tuin van ca. 12 m2;
- Energielabel C;
- Bouwjaar 1838, volledig gerenoveerd in 2009;
- Nieuwe fundering in 2009;
- C.V.-ketel (Intergas Kombi Kompakt HRE), bouwjaar 2021;
- De VvE Oude Looiersstraat 22 wordt in eigen beheer gevoerd en bestaat uit 3 appartementsrechten. De maandelijkse servicekosten bedragen € 150,--;
- Niet zelfbewoningsclausule van toepassing.

Nieuwsgierig geworden? Wij maken graag een afspraak met je!

Aanvaarding per direct.
------------------------------------------
This charming ground-floor apartment of approximately 53 m², featuring a private entrance and a patio, is located in the highly sought-after Jordaan area, in the heart of Amsterdam’s city center.

The well-maintained apartment, situated on freehold land (no leasehold), offers a bright living room with an open-plan kitchen, a modern bathroom, a spacious bedroom, and a pleasant patio where you can enjoy the afternoon sun. The entire complex was thoroughly renovated in 2009, including the renewal of the foundation.

The location is truly ideal. Just around the corner you will find the Elandsgracht and the picturesque “Nine Streets,” renowned for their unique boutiques, cozy cafés, and excellent restaurants. The Anne Frank House and the impressive Westerkerk are only a few minutes’ walk away. In addition, Westerpark, Vondelpark, and Museumplein are all easily and quickly within reach. Accessibility is excellent, with various tram, bus, metro, and train connections (Central Station) in the immediate vicinity.

Are you looking for a charming ground floor apartment in the city center, with private outdoor space, new foundation, no land lease, and the tranquility of a sheltered setting, with countless amenities within easy reach? Then this is your opportunity!

Layout:
Private entrance with access to the ground-floor apartment. There is also a second entrance via the communal stairwell.
What immediately stands out is the unique window frontage at the front, giving the property an authentic character.
Upon entering, you step directly into the bright living room with an open-plan kitchen, located at the rear of the property. The kitchen is equipped with various built-in appliances, including a 5-burner gas stove, stainless steel extractor hood, dishwasher, fridge-freezer combination, and a combination oven/microwave.
The bathroom features a walk-in shower, vanity unit, and toilet. Next to the bathroom is a spacious storage cupboard with connections for a washing machine and the central heating boiler.
The generously sized bedroom is located at the rear, includes two large wardrobes, and provides direct access to the patio.
Most of the apartment is fitted with beautiful oak, wooden floors.

Details:
- Freehold property (no ground lease);
- Living area approx. 53 m2;
- Private patio/garden of approx. 12 m²;
- Energy label C;
- Built in 1838, completely renovated in 2009;
- New foundation in 2009;
- Central heating boiler (Intergas Kombi Kompakt HRE), installed in 2021;
- VvE Oude Looiersstraat 22 is self-managed and consists of 3 apartment rights; monthly service charges are €150.-;

Curious? We are happy to make an appointment with you!

Acceptance immediately.

Bijzonderheden

De gegevens en maatvoeringen op de plattegronden en in de brochure zijn indicatief. Hoewel de informatie zorgvuldig is samengesteld is het toch niet uitgesloten dat bepaalde informatie na verloop van tijd verouderd of niet meer correct is. Aan de op de plattegronden en in de brochure vermelde informatie kunnen dan ook op geen enkele manier rechten worden ontleend. 27 Huis Makelaars aanvaardt geen enkele aansprakelijkheid voor onjuiste of onvolledige informatie noch voor schade ten gevolge van het bezoek aan onze website of andere websites die door middel van links toegankelijk zijn vanuit de website van 27 Huis Makelaars. Tevens sluit 27 Huis Makelaars aansprakelijkheid uit voor externe partijen.
Het woonoppervlak is opgemeten conform meetinstructies gebruikmakende van de NEN2580. De Meetinstructie is bedoeld om een meer eenduidige manier van meten toe te passen voor het geven van een indicatie van de gebruiksoppervlakte. De Meetinstructie sluit verschillen in meetuitkomsten niet volledig uit, door bijvoorbeeld interpretatieverschillen, afrondingen of beperkingen bij het uitvoeren van de meting. Alle opgegeven maten en oppervlaktes zijn derhalve indicatief.
Aspirant-kopers worden bij deze uitdrukkelijk uitgenodigd om; het oppervlak na te meten en/of zelf te kijken/onderzoeken naar de mogelijkheden om eigen gewenste invulling te geven aan het verkochte. Verkopende partij geeft hierover geen garanties.
-------------------------------
The data and dimensions on the maps and in the text/brochure are indicative. Although the information has been carefully composed it is not excluded that some information about time is outdated or no longer correct. The information listed on the maps and in the brochure can therefore in no way be legally binding. 27 House Real Estate accepts no liability for incorrect or incomplete real estate information or for any damages as a result of your visit to our website or other websites that are accessible through links from the website of 27 House Real Estate. 27 House Real Estate accepts no liability for any external parties.
The living surface is measured in accordance with the NEN2580 measurement instructions. The NEN2580 measurement instructions are intended to apply a more consistent and unambiguous way of measuring for giving an indication of the surface of use but does not completely exclude differences in measurement outcomes, for example due to differences in interpretation, rounding or limitations when measuring. All specified sizes and surfaces are therefore indicative.
Prospective buyers are expressly invited to do the following: to measure the surface and/or to look at the possibilities of giving your own desired interpretation to the property dimensions and/or hire your own professional company to take measurements. The selling party can give no guarantees on the measurement report.

Kaart

Kenmerken

Overdracht

Referentienummer
06237
Vraagprijs
€ 510.000,- k.k.
Servicekosten
€ 150,-
Status
Onder bod
Aanvaarding
Direct
Aangeboden sinds
Woensdag 15 april 2026
Laatste wijziging
Woensdag 29 april 2026

Bouw

Type object
Appartement, benedenwoning
Woonlaag
1e woonlaag
Soort bouw
Bestaande bouw
Bouwperiode
1838
Dakbedekking
Bitumen
Type dak
Platdak
Isolatievormen
Gedeeltelijk dubbel glas

Oppervlaktes en inhoud

Perceeloppervlakte
60,9 m²
Woonoppervlakte
53 m²
Inhoud
215 m³

Indeling

Aantal bouwlagen
1
Aantal kamers
2 (waarvan 1 slaapkamer)
Aantal badkamers
1

Locatie

Ligging
Aan rustige weg
In centrum

Tuin

Type
Patio
Hoofdtuin
Ja
Oriëntering
Noord west
Staat
Normaal

Energieverbruik

Energielabel
C

CV ketel

CV ketel
Intergas Kombi Kompakt HRE
Warmtebron
Gas
Bouwjaar
2021
Combiketel
Ja
Eigendom
Eigendom

Uitrusting

Warm water
CV-ketel
Verwarmingssysteem
Centrale verwarming
Tuin aanwezig
Ja

Vereniging van Eigenaren

Ingeschreven bij de KvK
Ja
Periodieke bijdrage
Ja
Reservefonds
Ja
Meer jaren onderhoudsplan
Ja
Onderhoudsverwachting
Ja
Opstal verzekering
Ja

Kadastrale gegevens

Kadastrale aanduiding
Amsterdam E 10719
Perceeloppervlakte
79 m²
Omvang
Appartementsrecht of complex
Eigendomsituatie
Eigen grond
Indexnummer
A-1

Brochure(s) en overige bijlagen

Oude Looiersstraat 22-H, 1016 VJ AMSTERDAM (1) Download