English
Verkocht:Mortelstraat 117, 1019 VE Amsterdam - Foto
Verkocht
+40

Mortelstraat 117 1019 VE Amsterdam

  • Woonhuis
  • 7 kamers
  • 4 slaapkamers
  • 2 badkamers
  • Bouwjaar 2024
  • 98 m² perceeloppervlakte
  • 203 m² gebruiksoppervlakte
  • Gestoffeerd
  • A+++ Energielabel A+++

Beschrijving

Te koop aangeboden op Amsterdam Cruquiuseiland (Oostelijk Havengebied):

Duurzaam, luxe en royale familiewoning, gelegen in het in de afgelopen jaren volledig vernieuwde Cruquiuseiland in Amsterdam Oost. De woning heeft een woonoppervlakte van ruim 203 m2 en is verdeeld over maar liefst vijf woonlagen. De woning is in 2024 opgeleverd en na oplevering volledig onder handen genomen waarbij koste noch moeite zijn gespaard om een luxe en warm familiehuis te creëren.

Intern is de woning onder andere voorzien van drie ruim bemeten slaapkamers (4e slaapkamer te realiseren), een high-end keuken, twee badkamers (en drie aparte toiletten), vloerverwarming en koeling en twee ruime terrassen van totaal ca. 53 m2. Door het vrije zicht aan de voorzijde van het huis en de ligging vrijwel in de hoek van het complex geniet het huis tevens veel privacy. Kortom, een ruim, luxe en duurzaam familiehuis is een geliefde nieuwe buurt van Amsterdam.

OMGEVING:
De omgeving van de Mortelstraat in Amsterdam kenmerkt zich door zijn moderne bouw, levendigheid en kindvriendelijke karakter. Op wandelafstand van de Mortelstraat bevinden zich verschillende gezellige cafés en restaurants ( o.a. La Contessa, Bakkerij Millie Vanillie en Krux Brouwwerf), meerdere voorzieningen voor kinderen (o.a. stadspark met natuurspeeltuin en twee kinderdagverblijven) en aan de andere kant van het water heeft u beschikking over het Flevopark met zijn Flevoparkbad om te ontspannen. Basisschool De Kleine Kapitein bevindt zich tevens op steenworpafstand.

De buurt staat bekend om haar creativiteit, met kleine boetiekjes die unieke handgemaakte producten verkopen en kunstgalerijen die lokale talenten onder de aandacht brengen. De Albert Heijn is op één minuut loopafstand gelegen en ook de gezellige Dappermarkt is op fietsafstand van de woning gelegen.

Tevens is de woning goed bereikbaar per openbaar vervoer, zo bevindt er zich een busverbinding op loopafstand. Met de auto is de woning eveneens goed te bereiken door de goede aansluiting naar Ring A10. Station Amsterdam Muiderpoort is op fietsafstand van de woning gelegen.

INDELING:

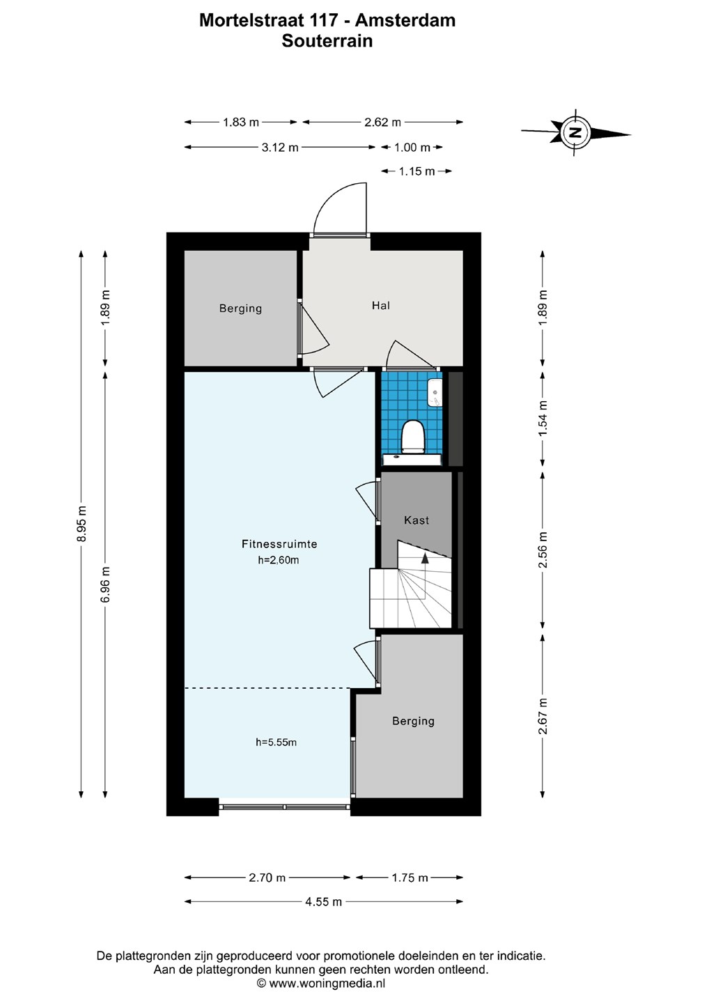
SOUTERRAIN | Geeft direct toegang tot de parkeergarage (met twee privé parkeerplaatsen) en is voorzien van een multifunctionele ruimte, een separaat toilet met fonteintje en meerdere bergruimtes (inclusief opstelling voor wasmachine en droger). Deze verdieping kan ideaal worden gebruikt als kantoor- of fitnessruimte of omgebouwd worden tot vierde slaapkamer of au-pair verblijf.

BEGANE GROND | Onderdeel van de tweelaags woonruimte van het huis, momenteel in gebruik als zitkamer. Entreedeur van de woning bevindt zich aan de straatzijde. Tevens voorzien van een vide aan de voorzijde, bergruimte en separaat toilet. Open inpandige trap geeft toegang tot de tweede verdieping van de woonruimte.

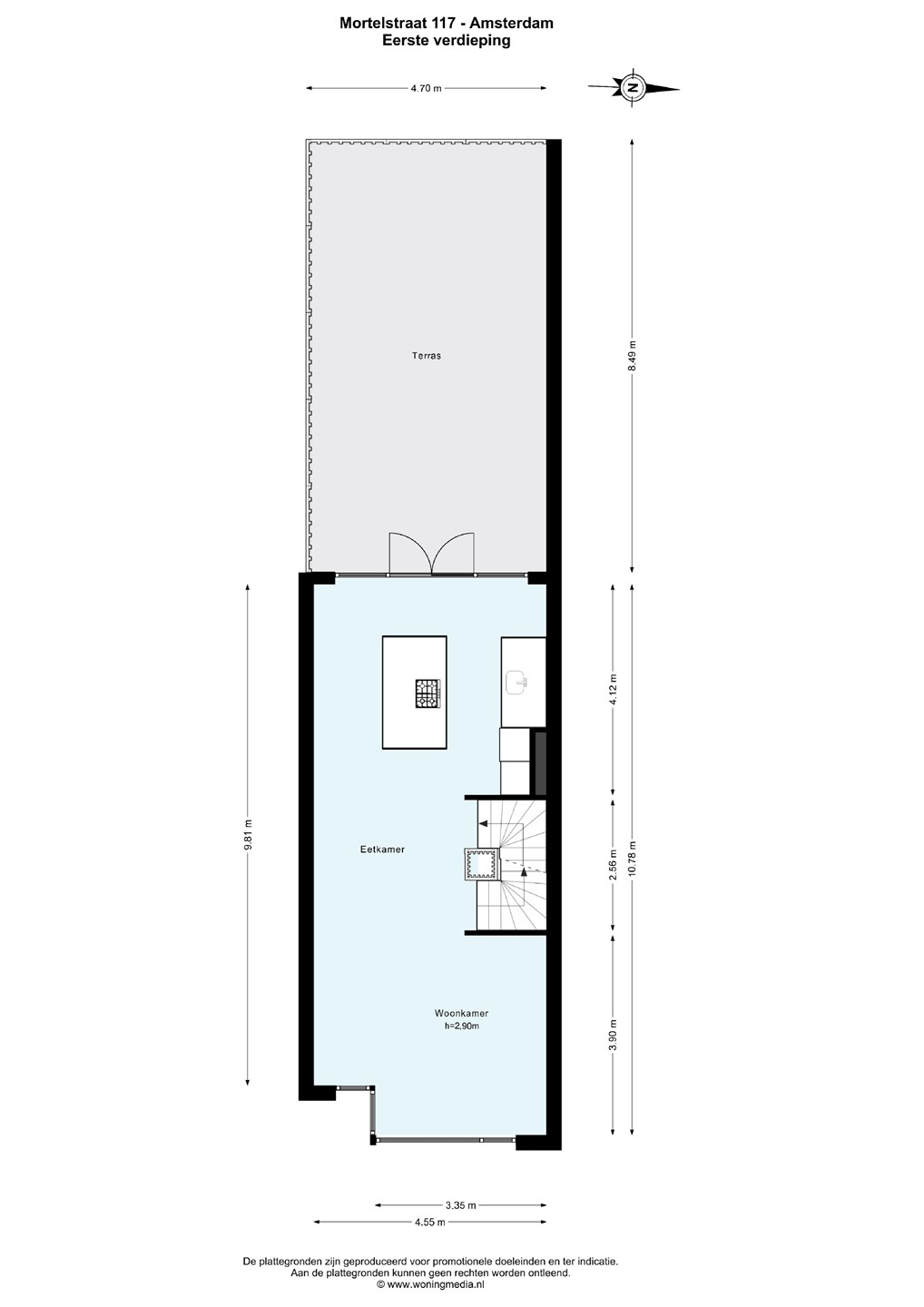
EERSTE VERDIEPING | Royale leefruimte met aangrenzend terras, luxe open woonkeuken en opstellingen voor een riante eettafel en zithoek. Kenmerkend aan deze woonlaag zijn de volledig opvouwbare glazen achterpui, het aangrenzende zonnige terras/daktuin van maar liefst 40 m2 met pergola, de luxe woonkeuken welke van alle gemakken is voorzien (o.a. Gaggenau apparatuur) en de erker aan de voorzijde met zicht over het parkje.

TWEEDE VERDIEPING | Twee ruim bemeten en lichte slaapkamers met luxe badkamer en separaat toilet centraal. De royale badkamer is voorzien van een ligbad, dubbel wastafelmeubel en inloopdouche. Tevens bevindt zich hier separaat de opstelling voor wasmachine en droger.

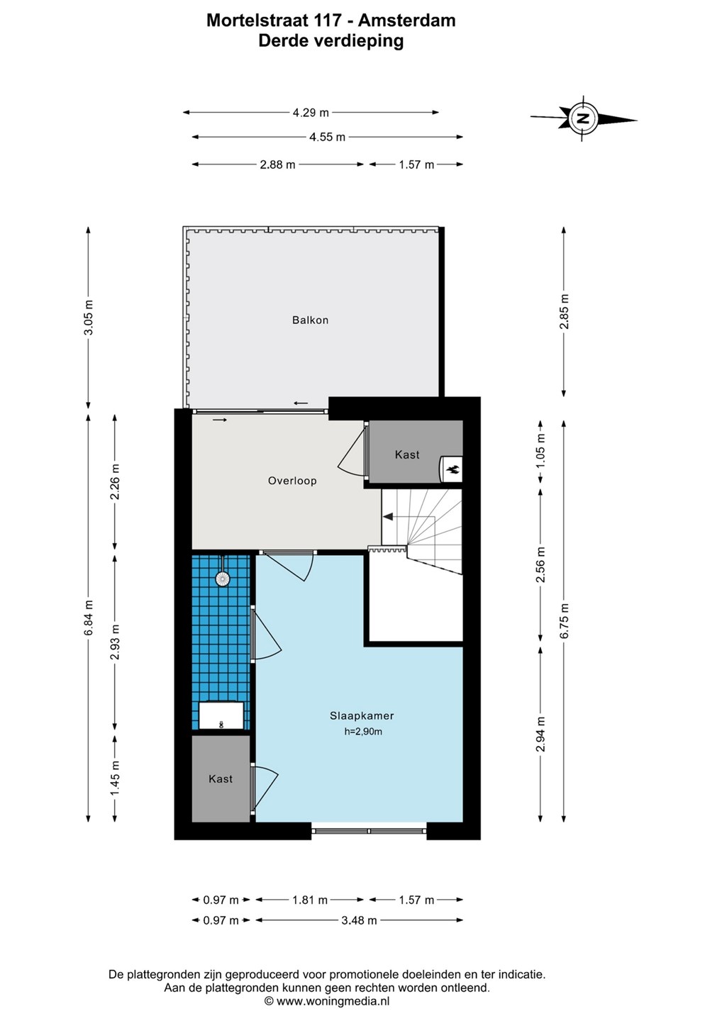
DERDE VERDIEPING | Master bedroom met eigen badkamer (voorzien van een inloopdouche en wastafelmeubel), kastruimte en dakterras van ca. 13 m2. Tevens bevindt zich op de overloop van deze verdieping de technische ruimte.

ALGEMEEN | Het gehele woonhuis is van meerdere luxe gemakken voorzien. Zo beschikt de gehele woning onder andere over hoogwaardige vloeren met vloerverwarming en koeling, raambekleding aan binnen- en buitenzijde (elektrische zonwering met afstandsbediening en via app) en fraaie verlichting. Op het dak van de woning zijn meerdere zonnepanelen gelegen, behorend bij het huis.

PARKEREN:
De woning is voorzien van twee privé parkeerplaatsen, waarvan één met laadstation, in de aangrenzende parkeergarage welke via het souterrain van de woning kan worden bereikt. Tevens is het pand voorzien van een inpandige fietsenberging.

VERENIGING VAN EIGENAREN:
De woning en de parkeerplaatsen vallen beide onder een separate VvE. Beide zijn gezond en worden actief en professioneel beheerd. De servicekosten bedragen thans € 149,- (woning) en € 101,- (parkeerplaatsen) per maand.

EIGENDOMSSITUATIE:
De woning bevindt zich op gemeentelijke erfpachtgrond. Het huidige tijdvak is afgekocht en loopt tot en met 31 augustus 2071.

BIJZONDERHEDEN:
- Duurzaam familiehuis (energielabel A+++);
- bouwjaar 2024;
- fraaie ligging met vrij zicht aan de voorzijde;
- hoogwaardig verbouwd na oplevering medio 2024;
- luxe open woonkeuken met o.a. Gaggenau apparatuur;
- royale daktuin van ca. 40 m2, te bereiken middels openslaande deur en opvouwbare glazen pui;
- daktuin voorzien van luxe pergola;
- twee privé parkeerplaatsen in parkeerkelder (met directe toegang tot de woning);
- voorzien van alle denkbare duurzaamheidsgemakken;
- drie ruim bemeten slaapkamers en twee badkamers;
- drie separate toiletten met fonteintje;
- vloerverwarming en koeling door de gehele woning;
- tweede zonnige dakterras op de derde verdieping;
- multifunctionele ruimte in het souterrain (kantoor en-/of home gym);
- erfpacht afgekocht t/m 2071;
- oplevering in overleg;
- voorbehoud gunning verkoper;

Voor meer informatie over deze woning en/of het maken van een bezichtigingsafspraak kunt u contact opnemen met ons kantoor. Onze medewerkers zijn u graag van dienst.

Deze woning wordt aangeboden conform art 7:17 lid 6 Burgerlijk Wetboek. De opgegeven kenmerken en/of informatie is door ons met de nodige zorgvuldigheid samengesteld. Onzerzijds wordt echter geen enkele aansprakelijkheid aanvaard voor enige onvolledigheid, onjuistheid of anderszins, dan wel de gevolgen daarvan. Alle opgegeven maten en oppervlakten zijn slechts indicatief. De opgegeven kenmerken zijn slechts als aanduiding bedoeld. NEN2580-clausule is van toepassing bij deze woning.

Kaart

Kenmerken

Overdracht

Referentienummer
02729
Vraagprijs
€ 1.750.000,- k.k.
Servicekosten
€ 250,-
Inrichting
Ja
Inrichting
Gestoffeerd
Status
Verkocht
Aanvaarding
In overleg
Aangeboden sinds
Vrijdag 21 februari 2025
Laatste wijziging
Woensdag 2 juli 2025

Bouw

Type object
Woonhuis, eengezinswoning, tussenwoning
Soort bouw
Bestaande bouw
Bouwperiode
2024
Dakbedekking
Bitumen
Type dak
Platdak
Isolatievormen
Dakisolatie
Driedubbel glas
Dubbel glas
Ecobouw
HR-glas
Vloerisolatie
Volledig geïsoleerd

Oppervlaktes en inhoud

Perceeloppervlakte
98 m²
Woonoppervlakte
203 m²
Inhoud
770 m³
Oppervlakte externe bergruimte
25 m²
Oppervlakte gebouwgebonden buitenruimte
53 m²

Indeling

Aantal bouwlagen
5
Aantal kamers
7 (waarvan 4 slaapkamers)
Aantal badkamers
2 (en 3 aparte toiletten)

Locatie

Ligging
Aan rustige weg
Dichtbij openbaar vervoer
Havengebied
In woonwijk
Nabij school
Nabij snelweg
Vrij uitzicht
Zelfstandig

Tuin

Type
Achtertuin
Hoofdtuin
Ja
Oriëntering
West
Staat
Prachtig aangelegd

Energieverbruik

Energielabel
A+++

Uitrusting

Aantal parkeerplaatsen
2
Aantal overdekte parkeerplaatsen
2
Warm water
Stadsverwarming
Verwarmingssysteem
Stadsverwarming
Vloerverwarming
Ventilatie methode
Balansventilatie
Mechanische ventilatie
Badkamervoorzieningen Badkamer 1
Dubbele wastafel
Inloopdouche
Ligbad
Vloerverwarming
Wastafelmeubel
Badkamervoorzieningen Badkamer 2
Inloopdouche
Vloerverwarming
Wastafelmeubel
Parkeergelegenheid
Parkeerkelder
Heeft kabel-tv
Ja
Glasvezelaansluiting aanwezig
Ja
Tuin aanwezig
Ja
Beschikt over een internetverbinding
Ja
Heeft rolluiken
Ja
Heeft schuur/berging
Ja
Heeft een schuifpui
Ja
Heeft zonwering
Ja
Heeft zonnecollectoren
Ja
Heeft ventilatie
Ja

Kadastrale gegevens

Kadastrale aanduiding
Amsterdam A 8517
Omvang
Appartementsrecht of complex
Eigendomsituatie
Erfpacht
Lasten
Voortdurend, met afkoopoptie, afgekocht tot 30-08-2071