English
Nieuw in verhuur:Wedderborg 52, 1082 TB Amsterdam - Foto
Nieuw in verhuur
+19

Wedderborg 52 1082 TB Amsterdam € 2.200,- /mnd

  • Appartement
  • 3 kamers
  • 2 slaapkamers
  • Bouwjaar 1963
  • 68 m² gebruiksoppervlakte
  • B Energielabel B

Beschrijving

- PLEASE FILL IN THE VIEWING REQUEST FORM TO PLAN A VIEWING, CALLS WIL NOT BE SCHEDULED -

Recently renovated fully furnished 2-bedroom apartment with West-facing private balcony, situated on the 1st floor in Amsterdam Buitenveldert. On walking distance to Gustav Mahlerlaan and Zuid station.
Amsterdam Buitenveldert is a peaceful and well connected area with all amenities on your doorstep.

Throughout the apartment lies a quality laminate floor and the kitchen is supplied with all appliances.

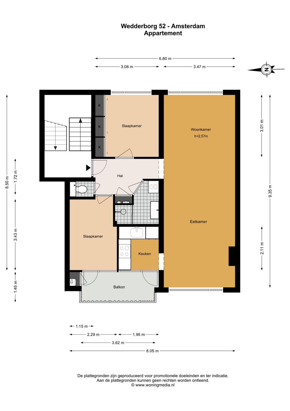
LAYOUT
Communal entrance, stairwell to 1st. floor.
Hallway with connection to all rooms 1 bedroom in the front- and 1 bedroom in the backside of the apartment.
Bathroom with shower, sink, washer and dryer. Separate toilet.
Bright living room with half open kitchen with access to the balcony on the west side, kitchen is fully equipped with all appliances.

LOCATION
In less than 200 meters, public transport options are available in directions Amsterdam Lelylaan Station, Amsterdam Amstel Station, Amsterdam CS and other parts of the city. Station Zuid and Zuidas are within walking distance or bike there within 5 minutes.
The newly upgraded shopping center 'Groot Gelderlandplein' is just around the corner and gives you a variety of supermarkets, several cafes, restaurants and shops.
The 'Gijsbrecht van Amstelpark' will be your back yard and there are multiple sports facilities few minutes away.

Great apartment on a fantastic location!

Details:
- Rental price 2.200 EU excl. utilities
- Available directly for a minimum of 12 months ( lease A)
- 2 Bedrooms
- Energy label B
- 2 months deposit
- Next to Zuidas
- Sunny balcony
- Furnished
- Size ca. 67 m2 (measured according to NEN 2580)
- Beautiful location
- Not suitable to share
- No pets, no smoking
- Subject to landlord approval
- Income requirement: at least 3 times the gross monthly rent

**This Property is listed by JLG Real Estate a MVA Certified Expat Broker**

DISCLAIMER
This information has been compiled by us with the necessary care. On our part, however, no liability is accepted for any incompleteness, inaccuracy or otherwise, or its consequences. All sizes and dimensions are indicative.

Kaart

Kenmerken

Overdracht

Prijs
€ 2.200,- per maand (gemeubileerd)
Status
Nieuw in verhuur
Aanvaarding
Direct
Aangeboden sinds
Vrijdag 20 februari 2026

Bouw

Type object
Appartement, portiekflat
Woonlaag
2e woonlaag
Soort bouw
Bestaande bouw
Bouwjaar
1963
Dakbedekking
Bitumen
Type dak
Platdak
Isolatievormen
Dubbel glas

Oppervlaktes en inhoud

Woonoppervlakte
68 m²
Inhoud
176 m³

Indeling

Aantal bouwlagen
1
Aantal kamers
3 (waarvan 2 slaapkamers)

Locatie

Ligging
Aan rustige weg
In woonwijk

Energieverbruik

Energielabel
B

CV ketel

Combiketel
Ja

Uitrusting

Verwarmingssysteem
Stadsverwarming
Badkamervoorzieningen
Douche
Wastafel
Heeft een balkon
Ja
Heeft kabel-tv
Ja
Heeft zonwering
Ja
Heeft ventilatie
Ja

Kadastrale gegevens

Kadastrale aanduiding
Amsterdam AK 2795
Omvang
Appartementsrecht of complex
Eigendomsituatie
Erfpacht
Indexnummer
9
Lasten
Voortdurend,

Media

Plattegronden