English
+23

Paramaribostraat 25-2 1058 VG Amsterdam € 3.950,- /mnd

  • Appartement
  • 6 kamers
  • 5 slaapkamers
  • 2 badkamers
  • Bouwjaar 1928
  • 155 m² gebruiksoppervlakte
  • Gemeubileerd
  • A Energielabel A

Beschrijving

Nu te huur en nieuw gerenoveerd; op de hoek gelegen dubbel bovenhuis gelegen in de gezellige West-Indische buurt. U vindt hier een scala aan voorzieningen binnen handbereik, zoals supermarkten, restaurants, cafés en winkels. Bovendien is het openbaar vervoer gemakkelijk toegankelijk, met verschillende tram- en bushaltes in de buurt. Dit maakt het eenvoudig om de rest van de stad te verkennen en naar werk of school te reizen. De woning zelf beschikt over 5 slaapkamers en 2 badkamers en is daarmee ideaal voor gezinnen met bijvoorbeeld een au pair. Tevens is het mooie Vondelpark nabijgelegen en kunt u nog parkeren voor de deur. Binnen 1 minuut bevindt u zich al op de ringweg A-10, richting Zaanstad, Den Haag en Rotterdam.

Bij binnenkomst in de woning wordt u begroet door een lichte en luchtige sfeer. De woonkamer is ruim en biedt voldoende plek voor ontspanning en gezellig samenzijn. Grote ramen laten natuurlijk licht binnenstromen en bieden uitzicht op de levendige straat beneden. De open keuken is modern en volledig uitgerust, waardoor het een plezier is om maaltijden te bereiden en te genieten van gezinsmaaltijden.

Indeling:
Ingang op de eerste verdieping; trap naar de 2e verdieping
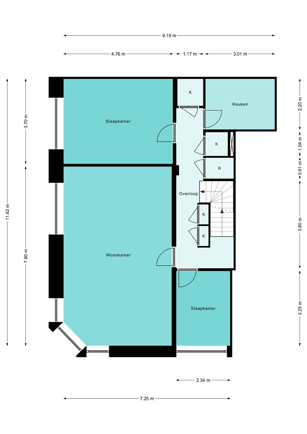
Tweede verdieping: hal, ruime woonkamer met moderne open keuken met kookeiland (v.v. alle mogelijke inbouw apparatuur), 2 slaapkamers, nieuwe moderne badkamer (v.v. ligbad, aparte douche en dubbele wastafel), apart toilet, trap naar de 3e verdieping
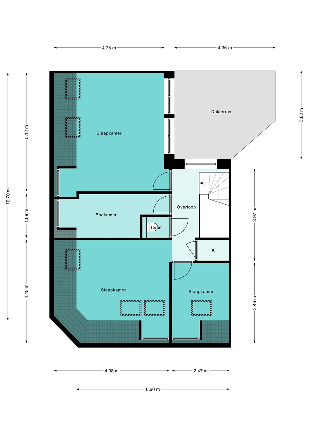
Derde verdieping: hal, 3 slaapkamers, 2e badkamer (v.v. ligbad, aparte douche en dubbele wastafel), apart toilet, zonnig dakterras

Extra:
- zonnepanelen
- nieuw gerenoveerd
- gemeubileerd
- 2 verdiepingen
- 5 slaapkamers
- 2 badkamers
- dakterras
- totaal 155m2

LET OP: DEZE WONING IS NIET GESCHIKT VOOR INDIVIDUELE WONINGDELERS!

Kaart

Kenmerken

Overdracht

Referentienummer
01313
Huurprijs
€ 3.950,- per maand (gemeubileerd, gestoffeerd)
Borg
€ 7.700,-
Inrichting
Ja
Inrichting
Gemeubileerd
Aanvaarding
Per zaterdag 1 november 2025
Aangeboden sinds
Woensdag 8 oktober 2025

Bouw

Type object
Appartement, tussenverdieping
Woonlaag
2e woonlaag
Soort bouw
Bestaande bouw
Bouwperiode
1928
Isolatievormen
Dubbel glas
Volledig geïsoleerd

Oppervlaktes en inhoud

Woonoppervlakte
155 m²
Inhoud
418 m³
Oppervlakte gebouwgebonden buitenruimte
20 m²

Indeling

Aantal bouwlagen
2
Aantal kamers
6 (waarvan 5 slaapkamers)
Aantal badkamers
2 (en 2 aparte toiletten)

Energieverbruik

Energielabel
A

Uitrusting

Warm water
CV-ketel
Verwarmingssysteem
Centrale verwarming
Heeft kabel-tv
Ja

Media

Video

Plattegronden