English
Huur:Lutonhof 124, 1043 EG Amsterdam - Foto
+31

Lutonhof 124 1043 EG Amsterdam € 2.375,- /mnd

  • Appartement
  • 3 kamers
  • 2 slaapkamers
  • 1 badkamers
  • Bouwjaar 2024
  • 65 m² gebruiksoppervlakte
  • Gestoffeerd
  • A+ Energielabel A+

Beschrijving

NIEUW IN DE VERHUUR!! Ben jij op zoek naar een heerlijk licht, duurzaam (energielabel A+) en goed ingedeeld gestoffeerd 3-kamer (zie plattegrond voor de afmetingen van de slaapkamers: niet geschikt voor woningdelers) nieuwbouwappartement met ruim balkon op loopafstand van station Sloterdijk. Zoek dan niet verder en plan snel een bezichtiging.

*Reageren kan uitsluitend per email tezamen met profielschets en inkomensindicatie. Kandidaten die geselecteerd zijn ontvangen vervolgens een uitnodiging voor een bezichtiging.

Omgeving:
Het woongebouw genaamd Track 6 met 41 appartementen maakt onderdeel uit van project MO*Town en bevindt zich in Sloterdijk Centrum, op loopafstand van NS-station Sloterdijk. Dit gebied in Amsterdam West ondergaat een enorme transformatie naar een groene, bruisende stadswijk. Een gemengd woon- en werkgebied op bovendien een geweldige plek; een knooppunt van openbaar vervoer, de ring A10 naast de deur en op fietsafstand van de binnenstad. Het pocketpark dat straks tussen de 3 MO*Town gebouwen ligt biedt ruimte voor ontspanning voor bewoners. Je komt binnen via een tussenstraat en je betreedt het mediterraan aandoende binnenhof: een oase van rust. Vanuit dit hof worden alle woningen ontsloten.

Lay-out:
Keurig verzorgde algemene entree op de begane grond met toegang naar de lift/trap als ook de parkeergarage met gemeenschappelijke fietsenstalling.

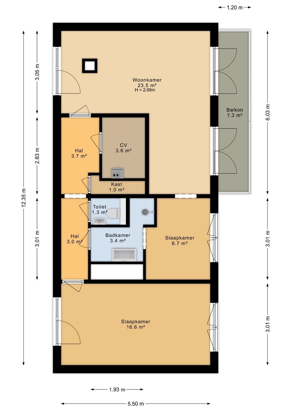
Het appartement is gelegen op de vijfde verdieping. Binnenkomst in de hal met toegang tot alle vertrekken, te weten: woon/eetkamer, keuken, 2 slaapkamers, badkamer, toilet, technische ruimte/inpandige berging en balkon. In de ondergelegen parkeerkelder bevindt zich de gemeenschappelijke fietsenstalling. Geen externe berging aanwezig.

De doorzon woon/eetkamer is van goed formaat en geeft toegang tot het balkon (8m2) gesitueerd op het oosten. De keuken is voorzien van voldoende kastruimte en diverse moderne inbouwapparatuur (o. a. koel-vriescombinatie, vaatwasser, inductiekookplaat, magnetron/oven en afzuigkap). De badkamer is uitgevoerd in neutrale kleurstelling, volledig betegeld en voorzien van een inloopdouche met waterbesparende regendouche en een wastafelmeubel met spiegel en elektrische handdoekradiator. Het toilet met fontein is uitgevoerd in dezelfde kleurstelling. De slaapkamers zijn beide van goed formaat, waarvan er één direct toegang geeft tot de badkamer. In de technische ruimte/inpandige berging bevindt zich de aansluiting voor de wasmachine en/of droger. Het appartement wordt verwarmd als ook gekoeld d.m.v. vloerverwarming (WKO). De vloer is afgewerkt met een kwalitatief hoogwaardige PVC vloer.

Buitenruimte
Tot de woning hoort een privé balkon van ca. 8m2 gesitueerd op het oosten. Daarnaast heeft elke bewoner toegang tot het gemeentelijke, onder architectuur aangelegde, afgesloten dakterras gelegen op de 6e (bovengelegen) verdieping.

Parkeren
Op dit adres kunt u geen parkeervergunning aanvragen en er zijn momenteel geen parkeerplaatsen te huur in het complex.

Bijzonderheden:
-Per direct beschikbaar;
-Vraagprijs: €2.375,- p.m. inclusief VvE-bijdrage, exclusief verwarming/warm water, elektra, tv/internet en lokale belastingen (afvalstoffenheffing -en waterschapsbelasting);
-Borg: 2 maanden kale huur;
-Staat van oplevering: gestoffeerd (inclusief raambekleding, wasmachine, verlichting en vloer);
-Bouwjaar: 2024;
-Energielabel: A+;
-Gasloos (verwarming en warm water door middel van aardwarmte/ WKO);
-65m2;
-2 slaapkamers;
-Separaat toilet;
-PVC vloer;
-Balkon op het oosten;
-Gemeenschappelijk dakterras;
-Gemeenschappelijke fietsenstalling in de onderbouw;
-Liftinstallatie en video intercom;
-Roken en huisdieren niet toegestaan;

Voor meer informatie of het maken van een bezichtigingsafspraak kunt u contact opnemen met ons kantoor. Onze medewerkers zijn u graag van dienst.

*************************************************************************************

NEW OFFER!! Are you looking for a lovely bright, sustainable (energy label A+) and well laid out unfurnished 3-room (see floor plan for bedroom dimensions: not suitable for home sharers) newly build apartment with large balcony within walking distance of Sloterdijk station. Then look no further and plan a viewing soon.

*If interested, first respond per email or via this add with your profile (household composition and indication of income). Candidates who are selected will then receive an invitation for a viewing.

Surroundings:
The residential building called Track 6 with 41 apartments is part of project MO*Town and is located in Sloterdijk Centrum, within walking distance of Sloterdijk NS railway station. This area in Amsterdam West is undergoing a massive transformation into a green, vibrant city district. A mixed residential and working area in what is also a great location; a hub of public transportation, the A10 ring road next door and within cycling distance of the city center. The pocket park that will soon be located between the 3 MO*town buildings provides space for relaxation for residents. You enter via a connecting street and enter the Mediterranean-style courtyard: an oasis of tranquility. From this courtyard, all homes are accessed.

Layout:
Well maintained general entrance on the ground floor with access to the elevator/stairs as well as the parking garage with communal bicycle storage.

The apartment is situated on the fifth floor. Entrance into the hall with access to all rooms, namely: : living/dining area, kitchen, 2 bedrooms, bathroom, toilet, utility/internal storage room and balcony. In the underground parking garage there is a communal bicycle storage. No external storage available.

The spacious living/dining room is of a good size and provides access to the east-facing balcony (8m²). The kitchen has plenty of cupboard space and various modern appliances (including fridge-freezer, dishwasher, induction hob, microwave/oven and extractor). The bathroom is in neutral colors, fully tiled and equipped with a walk-in shower with water-saving rain shower and a washbasin with mirror and electric towel radiator. The toilet with fountain is in the same color scheme. The bedrooms are both of good size, of which one gives direct access to the bathroom. In the technical room/internal storage you will find the connection for the washer and/or dryer. The apartment is heated as well as cooled by underfloor heating (WKO). The floor is finished with high-quality PVC flooring.

Outdoor area
The apartment has a private east facing balcony of approximately 8m2. In addition, all residents of the complex has access to the municipal, under architect-designed, roof terrace located on the 6th floor (above the apartment).

Parking
You cannot apply for a parking permit at this address and there are currently no parking spaces available for rent in the complex.

Features:
-Available immediately;
-Asking price: €2.375,- p.m. including VvE contribution, excluding heating/hot water, electricity, TV/internet and local taxes (waste levy and water board tax);
-Security deposit: 2 months base rent;
-State of completion: upholstered (including window coverings, washing machine, lighting and floor);
-Year of construction: 2024;
-Energy label: A+;
-Gassless (heating and hot water by means of geothermal heat / WKO);
-65m2;
-2 bedrooms;
-Separate toilet;
-PVC floor;
-Balcony facing east;
-Common roof terrace;
-Common bicycle storage in the basement;
-Elevator system and video intercom;
-Smoking and pets not allowed;

For more information or to make a viewing appointment please contact our office. Our consultants are at your service.

Kaart

Kenmerken

Overdracht

Referentienummer
00131
Huurprijs
€ 2.375,- per maand (incl. servicekosten, gestoffeerd, geïndexeerd)
Borg
€ 4.650,-
Inrichting
Ja
Inrichting
Gestoffeerd
Aanvaarding
Direct
Aangeboden sinds
Maandag 27 oktober 2025

Bouw

Type object
Appartement, bovenwoning
Woonlaag
5e woonlaag
Soort bouw
Bestaande bouw
Toegankelijkheid
Mindervaliden
Bouwperiode
2024
Dakbedekking
Bitumen
Type dak
Platdak
Isolatievormen
Volledig geïsoleerd

Oppervlaktes en inhoud

Woonoppervlakte
65 m²
Inhoud
170 m³
Oppervlakte externe bergruimte
6 m²
Oppervlakte gebouwgebonden buitenruimte
7,5 m²

Indeling

Aantal bouwlagen
1
Aantal kamers
3 (waarvan 2 slaapkamers)
Aantal badkamers
1 (en 1 apart toilet)

Locatie

Ligging
Dichtbij openbaar vervoer
Nabij school
Nabij snelweg

Energieverbruik

Energielabel
A+

Uitrusting

Warm water
Aardwarmte
Verwarmingssysteem
Aardwarmte
Ventilatie methode
Mechanische ventilatie
Heeft een balkon
Ja
Glasvezelaansluiting aanwezig
Ja
Heeft zonwering
Ja
Heeft zonnepanelen
Ja
Heeft ventilatie
Ja