English
Verhuurd:Hoofdweg, 1058 BG Amsterdam - Foto
Verhuurd
+17

Hoofdweg 1058 BG Amsterdam

  • Appartement
  • 3 kamers
  • 2 slaapkamers
  • 1 badkamers
  • Bouwjaar 1922
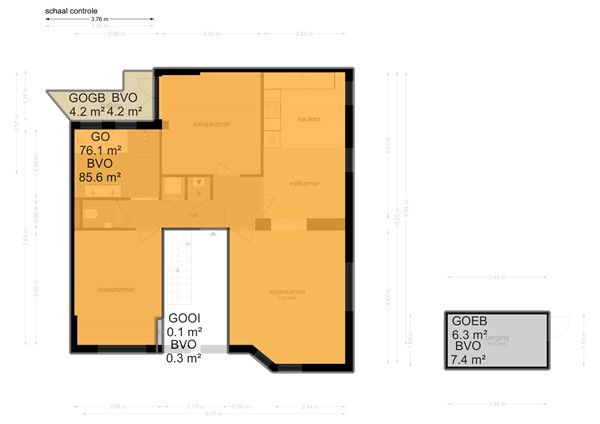
  • 76 m² gebruiksoppervlakte
  • Gestoffeerd
  • A+ Energielabel A+

Beschrijving

High-quality & spacious 2-bedroom UNFURNISHED corner apartment (76sqm) with balcony located on the west side of the city close to the Rembrandtpark and the Vondelpark!

The apartment will be available per February 1st for a minimum period of 12 months, model A contract and will be delivered unfurnished. The apartment has an energy rating A+.

Lay-out:
Communal entrance on the street, stairs to the second floor.

Second floor:
Hallway with separate toilet, laundry cupboard and access to all rooms.

The living area is situated at the front and has a lot of natural daylight from being on the corner (facing South-West).
The dining area and open kitchen can be reached through the living and/or the hallway.
The modern kitchen is equipped with all modern, built-in appliances such as a large refrigerator, freezer, combination oven/microwave, gas stove and dishwasher.

The primary bedroom is situated at the back and has access to the private balcony facing East.

Furthermore, the apartment is equipped with a luxurious bathroom including a bath tub, separate walk-in shower, double washbasin with storage and a towel radiator.

The second spacious bedroom at the front can be used as a great guest room and/or home office.

Lastly, there is a private storage room on the attic of 6sqm+.

Location:
The house is located on the well-known Hoofdweg, in the Baarsjes district on the West side of the city. A neighborhood that has increased in popularity in recent years, due to the many facilities and good accessibility. For example, there are many nice catering establishments on Jan van Galenstraat, Jan Evertsenstraat and Mercatorplein, such as White Label Coffee, Bar Frits, Café Cook, Het Restaurant and Cafe Zurich.
There are also various supermarkets and other shops for daily and non-daily shopping, and the famous Bos en Lommerplein with its daily fresh market is also within walking distance. For relaxation and recreation, you can visit the Rembrandtpark or Vondelpark, both within walking distance.
In addition, there are good public transport connections (tram, bus, metro and train).
Tram 7 and bus 15 stop almost in front of the door. Bus 21 towards Amsterdam CS is around the corner. The accessibility by car or motorcycle is also very favorable: the Ring A10 can be reached within a few minutes.

Details:
- Available per February 1st, 2026
- Energy label A+
- NO PETS
- NO STUDENTS

Kaart

Kenmerken

Overdracht

Referentienummer
00577
Huurprijs
€ 2.700,- per maand (incl. servicekosten)
Borg
€ 5.400,-
Inrichting
Ja
Inrichting
Gestoffeerd
Status
Verhuurd
Aanvaarding
Per zaterdag 1 februari 2025
Aangeboden sinds
Dinsdag 6 januari 2026
Laatste wijziging
Woensdag 18 februari 2026

Bouw

Type object
Appartement, tussenverdieping
Woonlaag
2e woonlaag
Soort bouw
Bestaande bouw
Bouwperiode
1922

Oppervlaktes en inhoud

Woonoppervlakte
76 m²
Inhoud
244 m³
Oppervlakte externe bergruimte
6,3 m²
Oppervlakte gebouwgebonden buitenruimte
4,2 m²

Indeling

Aantal bouwlagen
1
Aantal kamers
3 (waarvan 2 slaapkamers)
Aantal badkamers
1 (en 1 apart toilet)

Energieverbruik

Energielabel
A+

Uitrusting

Ventilatie methode
Mechanische ventilatie
Heeft een balkon
Ja
Heeft ventilatie
Ja

Media

Plattegronden