English
Verhuurd:Henri Polaklaan 5H, 1018 CP Amsterdam - Foto
Verhuurd
+31

Henri Polaklaan 5H 1018 CP Amsterdam

  • Appartement
  • 5 kamers
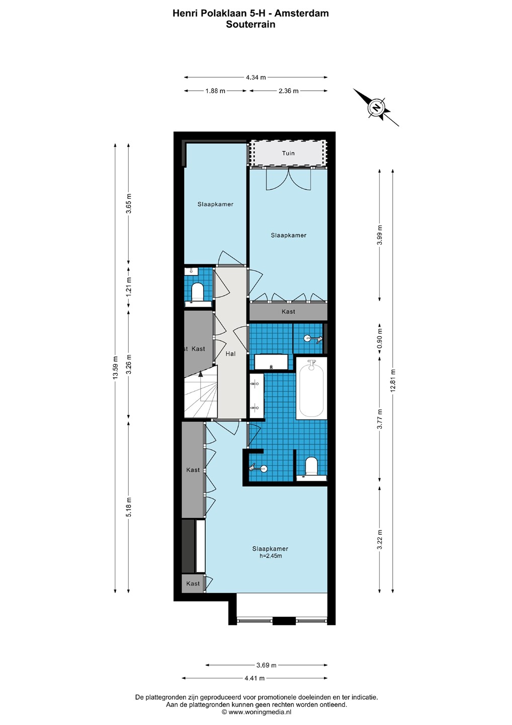
  • 4 slaapkamers
  • 2 badkamers
  • Bouwjaar 1854
  • 145 m² gebruiksoppervlakte
  • Gestoffeerd
  • A Energielabel A

Beschrijving

Met trots presenteren wij dit prachtige, volledig gerenoveerde appartement aan de idyllische Henri Polaklaan in Amsterdam.

*Vanwege renovatiewerkzaamheden bij naastgelegen panden bedraagt de huurprijs gedurende de eerste 6 maanden €5.500 ter compensatie van mogelijke overlast.*

Deze dubbele benedenwoning, gelegen aan een van de meest karakteristieke lanen van Amsterdam, is in november 2024 compleet vernieuwd en beschikt over zowel een voortuin als een ruime, fraai aangelegde stadstuin.

Bij binnenkomst via uw eigen entree komt u in een ruime hal die leidt naar de open woonkamer en keuken, waar direct de luxe keuken opvalt. Deze is volledig uitgerust met een groot kookeiland, moderne inbouwapparatuur en een wijnklimaatkast – een droomkeuken die ideaal gepositioneerd is tussen de eetkamer en woonkamer. Vanuit de woonkamer stapt u de smaakvol aangelegde tuin in, voorzien van een terras, vlonder en onderhoudsarm kunstgras. Aangrenzend bevindt zich een veelzijdige extra ruimte, ideaal als thuiskantoor of speelkamer. Het gehele huis is voorzien van vloerverwarming.

Op de benedenverdieping bevinden zich drie slaapkamers en twee stijlvolle badkamers. De royale hoofdslaapkamer beschikt over een inbouwkast, tv- en internetaansluiting, en een eigen badkamer met ligbad, inloopdouche, dubbele wastafel en toilet. De tweede badkamer, bereikbaar via de hal, heeft een brede wastafel en inloopdouche. Daarnaast biedt deze verdieping een praktische wasruimte onder de trap en twee lichte, ruime slaapkamers aan de achterzijde.

De Plantagebuurt is een levendige en geliefde wijk in Amsterdam-Oost. Met zijn charmante grachten, groene parken en rijke historie biedt de buurt een fantastische woonomgeving. In de directe omgeving vindt u een breed aanbod aan winkels, restaurants en cafés, en culturele attracties zoals Artis, het Tropenmuseum en het Muziektheater zijn op loopafstand. Dit is een unieke kans om uw droomhuis te verwerven in een van de meest gewilde buurten van Amsterdam.

Hoogtepunten van de woning:

Energielabel A
Voor- en achtertuin
Drie slaapkamers + studeerkamer
Twee badkamers en drie toiletten
Eigen entree
Vloerverwarming met zoneregeling door het hele huis
Nieuwe Remeha CW6-ketel met geïntegreerde boiler
Lichtplan met ledverlichting
Uitstekende locatie in Amsterdam, met Artis, trendy restaurants en het stadscentrum op loopafstand
Luxe afwerking zonder kostenbesparing

Kortom, een unieke kans op een prachtig afgewerkte woning in het hart van Amsterdam!

€20.- servicekosten zijn van toepassing

Kaart

Kenmerken

Overdracht

Referentienummer
1093
Huurprijs
€ 5.950,- per maand (gestoffeerd)
Borg
€ 13.000,-
Servicekosten
€ 15,- per maand
Inrichting
Ja
Inrichting
Gestoffeerd
Status
Verhuurd
Aanvaarding
Per maandag 2 maart 2026
Aangeboden sinds
Donderdag 5 februari 2026
Laatste wijziging
Vrijdag 6 maart 2026

Bouw

Type object
Appartement, dubbel benedenhuis
Woonlaag
1e woonlaag
Soort bouw
Bestaande bouw
Bouwperiode
1854
Isolatievormen
Dubbel glas
Vloerisolatie
Volledig geïsoleerd

Oppervlaktes en inhoud

Woonoppervlakte
145 m²
Inhoud
510 m³

Indeling

Aantal bouwlagen
1 (en 1 kelder)
Aantal kamers
5 (waarvan 4 slaapkamers)
Aantal badkamers
2 (en 2 aparte toiletten)

Locatie

Ligging
Aan rustige weg
Dichtbij openbaar vervoer
In centrum

Tuin

Type
Achtertuin
Oriëntering
Noord-oost
Staat
Prachtig aangelegd
Tuin 2 - Type
Voortuin
Tuin 2 - Oriëntering
Zuid-west
Tuin 2 - Staat
Prachtig aangelegd

Energieverbruik

Energielabel
A

CV ketel

Bouwjaar
2024

Uitrusting

Warm water
CV-ketel
Verwarmingssysteem
Vloerverwarming
Ventilatie methode
Mechanische ventilatie
Natuurlijke ventilatie
Keukenvoorzieningen
Inbouwapparatuur
Kookeiland
Badkamervoorzieningen Badkamer 1
Dubbele wastafel
Inloopdouche
Ligbad
Toilet
Wastafelmeubel
Badkamervoorzieningen Badkamer 2
Inloopdouche
Vloerverwarming
Wastafel
Wastafelmeubel
Tuin aanwezig
Ja
Heeft ventilatie
Ja