English
Nieuw in verhuur:Frans van Mierisstraat 27-2, 1071 RJ Amsterdam - Foto
Nieuw in verhuur
+27

Frans van Mierisstraat 27-2 1071 RJ Amsterdam € 2.850,- /mnd

  • Appartement
  • 3 kamers
  • 2 slaapkamers
  • 87 m² gebruiksoppervlakte
  • C Energielabel C

Beschrijving

- PLEASE FILL IN THE VIEWING REQUEST FORM TO PLAN A VIEWING, CALLS WIL NOT BE SCHEDULED!! -

Located in the beautiful Frans van Mierisstraat, we offer this charming 87 m² apartment on the 2nd. floor.
The apartment features two bedrooms, a brand new modern open-plan kitchen with all appliances and recently renovated bathroom.

Frans van Mierisstraat is a particularly quiet street in the very popular Old South part of Amsterdam but with all necessary shops, nice restaurants, parks etc. nearby.

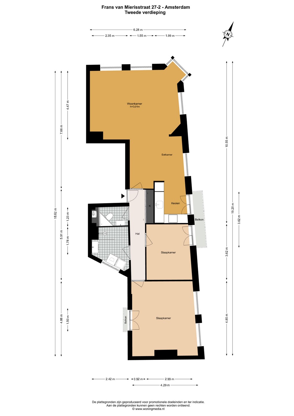
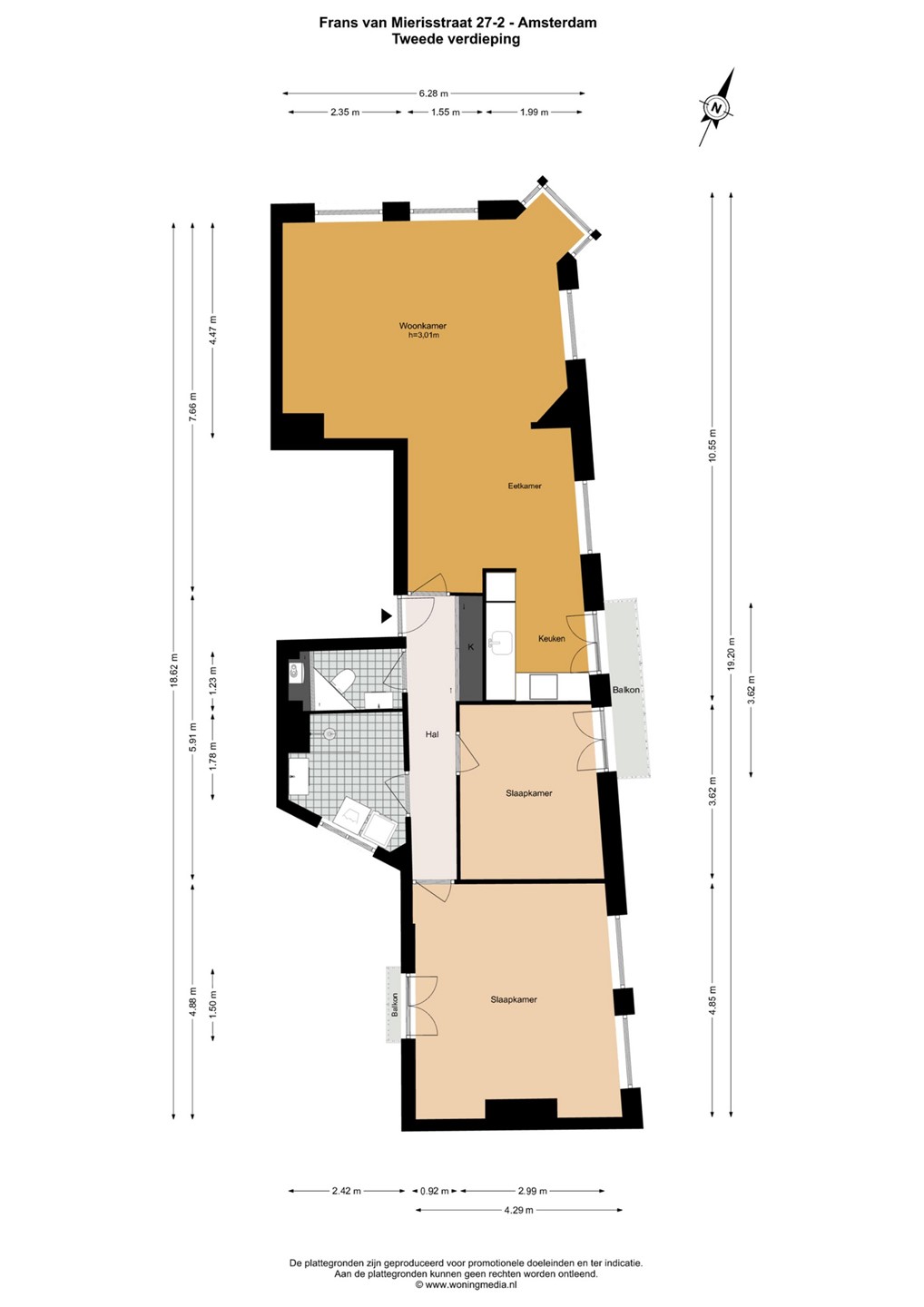
LAYOUT
On the second floor you enter the house's hallway and immediately to the left you'll find the living room, a spacious area with lots of natural light due to it's corner location and windows all around.
There's a brand new open plan kitchen with all new built-in appliances.
The apartment has 2 bedrooms, a bathroom with shower and sink. A washing machine and dryer can also be found in the bathroom. There is a separate toilet next to the bathroom.
A communal roof terrace can also be used during summer.

LOCATION
Frans van Mierisstraat is located in the popular Old South neighborhood in Amsterdam just around the corner of the Rijksmuseum.
The immediate area offers plenty of restaurants, shops and supermarkets to get your daily groceries.

DETAILS:
- Rental price € 2.850,- excl. per month
- Living area approx. 87 m² (not measured according NEN 2580)
- Available directly for a minimum period of 12 months (model A)
- Partly furnished (can also be unfurnished)
- 2 bedrooms
- Energy label C
- Communal roof terrace
- No sharing
- No pets
- Subject to landlord approval
- Income requirement: at least 3 times the monthly rent gross

**This Property is listed by JLG Real Estate a MVA Certified Expat Broker**

DISCLAIMER
This information has been compiled by us with the necessary care. On our part, however, no liability is accepted for any incompleteness, inaccuracy or otherwise, or its consequences. All sizes and dimensions are indicative.

Kaart

Kenmerken

Overdracht

Prijs
€ 2.850,- per maand (gestoffeerd)
Status
Nieuw in verhuur
Aanvaarding
Direct
Aangeboden sinds
Vrijdag 24 oktober 2025

Bouw

Type object
Appartement, bovenwoning
Woonlaag
3e woonlaag
Soort bouw
Bestaande bouw

Oppervlaktes en inhoud

Woonoppervlakte
87 m²
Inhoud
260 m³

Indeling

Aantal bouwlagen
1
Aantal kamers
3 (waarvan 2 slaapkamers)

Locatie

Ligging
Aan rustige weg
In centrum

Energieverbruik

Energielabel
C

CV ketel

Warmtebron
Gas
Combiketel
Ja
Eigendom
Eigendom

Uitrusting

Warm water
CV-ketel
Verwarmingssysteem
Centrale verwarming
Badkamervoorzieningen
Inloopdouche
Wastafel
Wastafelmeubel
Heeft kabel-tv
Ja