Nederlands
Under offer:Zuiderparklaan 368, 2574 GS The Hague - Photo
Under offer
+29

Zuiderparklaan 368 2574 GS The Hague €215,000

  • Apartment
  • 3 rooms
  • 2 bedrooms
  • Construction year 1934
  • 94 m² liveable area
  • G Energy certificate G
Mooie kans: maak deze casco woning helemaal tot jouw droomwoning!

Description

Spacious 4/ 5-room apartment with huge potential on popular Zuiderparklaan! The property is a former rental unit and needs a fresh makeover.

Centrally located in Rustenburg-Oostbroek neighborhood, we are pleased to offer this surprisingly spacious, second-floor apartment! The apartment offers approximately 94 m² of living space, a balcony with unobstructed views, and plenty of possibilities. The apartment is part of an active, professionally managed homeowners' association (HOA).

Neighborhood:
The apartment is located in the pleasant Rustenburg-Oostbroek neighborhood. The safe neighborhood is centrally located with easy access to various amenities. The vibrant city center of The Hague is just a 15-minute bike ride away, and shops on Dierenselaan and the Leyenburg shopping center are within walking distance. The apartment is conveniently located near a park (Zuiderpark is within walking distance), the beach, public transport, and major roads.

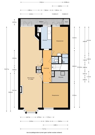
Layout:
Ground floor:
Open porch with stairs to the first floor.

First floor:
Entrance to the house, spacious hallway with stairs to the second floor. Large en-suite living room, two bedrooms, and a balcony spanning the entire house with unobstructed views over the sports fields behind the house. The unit requires internal renovation. The rear facade was recently replaced with new window frames with double glazing.

For the dimensions of the various rooms, please see the attached floor plans.

Features:
- Built in 1929
- Situated on perpetual leasehold land
- The current ground rent is €189 + €16 management fee per six months
- Living area: approx. 94 m²
- Balcony: approx. 6 m²
- 1/3 share in an active homeowners' association with low monthly fees of €120,--
- Materials and age clauses apply
- Non-occupancy clause applies
- Transfer of ownership can be quick
- Project notary for the deed of sale and transfer: Matzinger Eversdijk Notarissen.

This information has been compiled with due care. However, we accept no liability for any incompleteness, inaccuracy, or otherwise, or for the consequences thereof.

Kaart

Features

Offer

Reference number
01312
Asking price
€215,000
Service costs
€120
Upholstered
Not furnished
Furnishing
Unfurnished
Status
Under offer
Acceptance
By consultation
Offered since
26 November 2025
Last updated
07 December 2025

Construction

Type of residence
Apartment, upstairs apartment, apartment
Floor
2nd floor
Type of construction
Existing estate
Construction period
1934

Surfaces and content

Floor Surface
94 m²
Content
361 m³
Surface area other inner rooms
1 m²
External surface area
6 m²

Layout

Number of floors
1
Number of rooms
3 (of which 2 bedrooms)
Number of toilettes
1

Outdoors

Location
Residential area
Unobstructed view

Energy consumption

Energy certificate
G

Features

Water heating
Gas boiler
Heating
Central fireplace
Has a balcony
Yes
Has a skylight
Yes

Association of owners

Registered at Chamber of Commerce
Yes
Annual meeting
Yes
Periodic contribution
Yes
Reserve fund
Yes
Long term maintenance plan
Yes
Home insurance
Yes

Cadastral informations

Cadastral designation
Den Haag AL 5832
Range
Condominium
Ownership
Ground lease
Charges
€379 per year with redemption option