Nederlands
New for sale:Spaarndammerstraat 62-2, 1013 SZ Amsterdam - Photo
New for sale
+13

Spaarndammerstraat 62-2 1013 SZ Amsterdam €395,000

  • Apartment
  • 2 rooms
  • 1 bedroom(s)
  • 1 Bathroom
  • Construction year 1938
  • 48 m² liveable area
  • C Energy certificate C

Description

English below:

Spaarndammerstraat 62-2, Amsterdam
Licht en verzorgd 2-kamerappartement van 48m² met balkon, gelegen in de geliefde Spaarndammerbuurt, nabij het Westerpark in de bruisende en populaire Spaarndammerbuurt bieden wij dit lichte en goed ingedeelde 2-kamer appartement aan. De woning ligt op de tweede verdieping en beschikt over een zonnig balkon. Een heerlijk appartement met volop lichtinval, praktische indeling en een toplocatie, ideaal voor wie comfortabel wil wonen met de stad binnen handbereik.

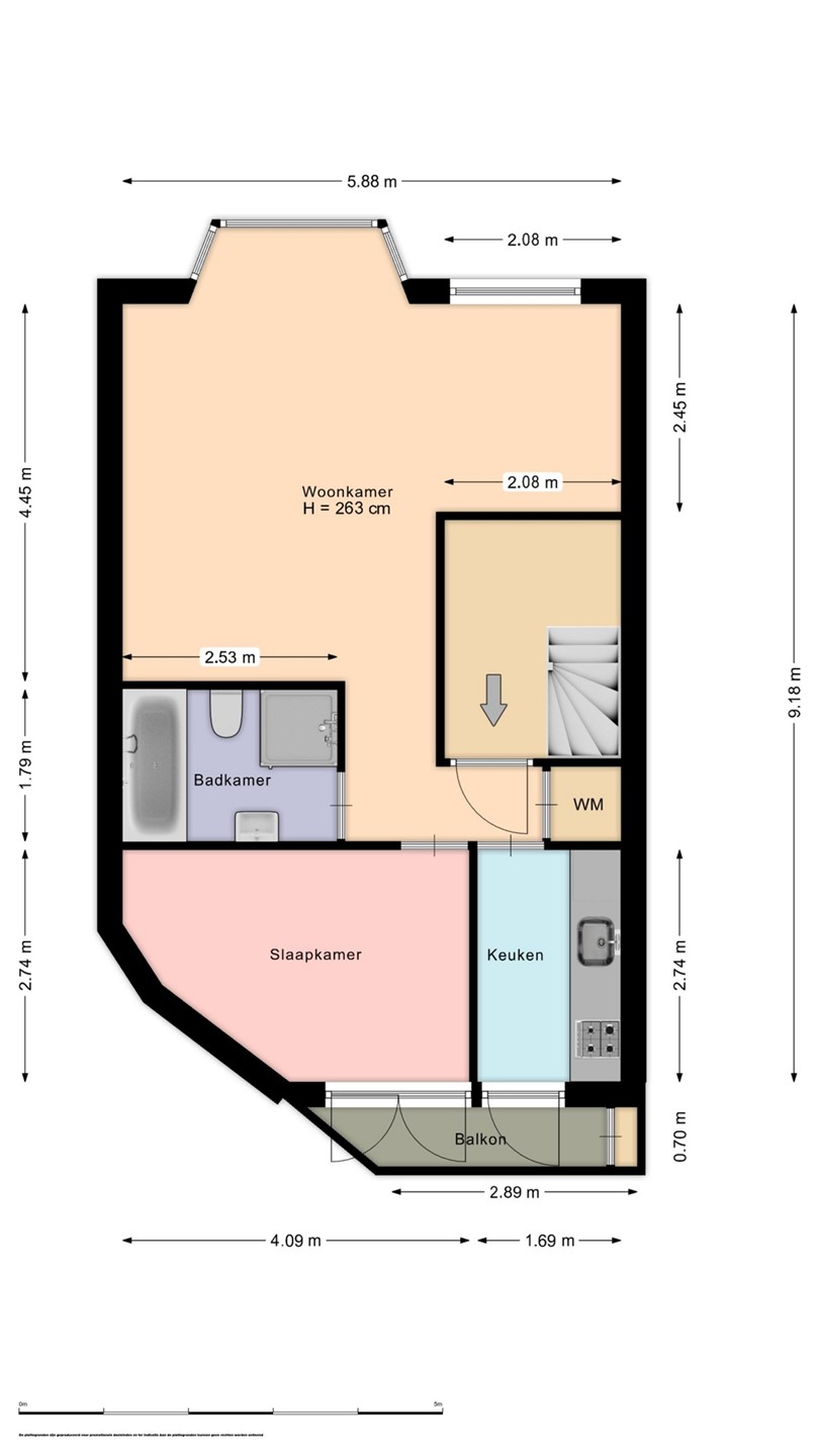
Indeling
Via het gemeenschappelijke trappenhuis bereik je de entree op de tweede verdieping. De hal geeft toegang tot alle vertrekken. De lichte woonkamer is voorzien van grote raampartijen en biedt toegang tot het balkon, waar je op zonnige dagen fijn buiten kunt zitten. De keuken is netjes uitgevoerd en beschikt over inbouwapparatuur. De badkamer is praktisch en verzorgd, voorzien van een ligbad, toilet, aparte douchecabine en wastafel.

De slaapkamer ligt aan de rustige achterzijde en biedt ruimte voor een tweepersoonsbed en kastruimte. Door de keuken eventueel naar de woonkamer te verplaatsen, kan de huidige keukenruimte eenvoudig worden omgebouwd tot een extra slaapkamer, een waardevolle toevoeging voor wie meer ruimte wenst.

Pluspunten:
-Bouwjaar 1938,
-Gebouw staat op eigen grond;
-Woonoppervlakte 48m², inhoud 159m3;
-Actieve VVE, maandelijkse bijdrage €.135,37
-CV ketel, Intergas Kombi Kompakt HR 36/30, 2007; energielabel C
-Balkon met gunstige ligging;
-Badkamer met ligbad én aparte douchecabine;
-Nette keuken voorzien van de nodige inbouwapparatuur;
-Veel lichtinval door grote raampartijen;
-Mogelijkheid om een tweede slaapkamer te creëren!;

Locatie
De Spaarndammerbuurt staat bekend om haar karakteristieke bouwstijl en levendige sfeer. Op slechts enkele minuten lopen bevindt zich het Westerpark, een groene oase waar je kunt wandelen, sporten of genieten op een terrasje. Daarnaast is er in de directe omgeving een breed aanbod aan winkels, supermarkten en gezellige horeca. Het centrum van Amsterdam en de Jordaan liggen op fietsafstand en met goed openbaar vervoer en de nabijgelegen A10 is ook de rest van de stad uitstekend bereikbaar.

Slot:
Benieuwd of dit appartement jouw nieuwe thuis kan worden? We laten je het graag zien tijdens een bezichtiging. Neem contact met ons op voor een afspraak.

======

English:

Spaarndammerstraat 62-2 , Amsterdam
Bright and well-maintained 1-bedroom apartment of 48m² with balcony – located in the sought-after Spaarndammerbuurt, near Westerpark
In the vibrant and popular Spaarndammerbuurt, we proudly offer this bright and well-designed 1-bedroom apartment. Situated on the second floor, the property offers approx. 48 m² of living space, a sunny balcony, a charming apartment with abundant natural light, a practical layout, and a top location, perfect for anyone looking to live comfortably with the city at their doorstep.

Layout:
The apartment is accessed via the communal staircase, leading to the entrance on the second floor. The hallway connects to all rooms. The bright living room features large windows and access to the balcony, where you can enjoy sunny days. The kitchen is neatly fitted and comes with built-in appliances. The bathroom is practical and well-kept, equipped with a bathtub, separate shower cabin and washbasin. A separate toilet is located in the hallway. The bedroom at the rear offers enough space for a double bed and wardrobe. By moving the kitchen into the living room, the current kitchen space can easily be transformed into an additional bedroom, a valuable option for those in need of extra space.

Highlights:
-Year of construction,1938
-Building located on freehold land
-Living area 48 m², volume 159 m³
-Active owners’ association (VvE), monthly contribution €135.37
-Central heating boiler: Intergas Kombi Kompakt HR 36/30, 2007; energy label C
-Balcony with favourable orientation
-Bathroom with bathtub and separate shower cabin
-Neat kitchen with built-in appliances
-Abundant natural light through large windows
-Option to create a second bedroom!

Location;
The Spaarndammerbuurt is known for its characteristic architecture and lively atmosphere. Just a few minutes’ walk away, you’ll find Westerpark – a green oasis perfect for walking, sports, or relaxing on a terrace. The neighbourhood also offers a wide range of shops, supermarkets and cosy cafés. Amsterdam city centre and the Jordaan are within easy cycling distance, while public transport and the nearby A10 motorway ensure excellent connectivity to the rest of the city.

Closing;
Curious if this could be your new home? We’d be delighted to show you around. Contact us today to schedule a viewing.

Kaart

Features

Offer

Reference number
07455
Asking price
€395,000
Service costs
€135.36
Status
New for sale
Acceptance
By consultation
Offered since
30 April 2026

Construction

Type of residence
Apartment, mezzanine, apartment
Floor
2nd floor
Type of construction
Existing estate
Construction period
1938
Isolations
Insulated glazing

Surfaces and content

Floor Surface
48 m²
Content
159 m³
Surface area other inner rooms
0.2 m²
External surface area
2.2 m²

Layout

Number of floors
1
Number of rooms
2 (of which 1 bedroom)
Number of bathrooms
1

Outdoors

Location
Near public transport
Near school
Residential area

Energy consumption

Energy certificate
C
Energy index
1.53

Boiler

Type of boiler
Intergas Kombi Kompakt HR 36/30
Heating source
Gas
Year of manufacture
2007
Combiboiler
Yes
Boiler ownership
Owned

Features

Water heating
Central heating system
Heating
Central heating

Association of owners

Registered at Chamber of Commerce
Yes
Annual meeting
Yes
Periodic contribution
Yes
Reserve fund
Yes
Long term maintenance plan
Yes
Home insurance
Yes

Cadastral informations

Cadastral designation
Amsterdam X 2267
Area
130 m²
Range
Condominium
Ownership
Full ownership
Index number
3

Media

Floor plans