Nederlands
Sold:Sarphatipark 86-2, 1073 EB Amsterdam - Photo
Sold
+33

Sarphatipark 86-2 1073 EB Amsterdam

  • Apartment
  • 5 rooms
  • 4 bedrooms
  • 1 Bathrooms
  • Construction year 1890
  • 142 m² liveable area
  • A+ Energy certificate A+

Description

For sale in Amsterdam Zuid (De Pijp):

Superb double upper house of no less than 142 m2 right by the Sarphatipark. This house, with its own entrance from the street, is immediately habitable and is in good condition.

To the right buyer, this property also offers the potential to be transformed into a high-end double upper house with, for example, three bedrooms, two bathrooms, a spacious living room, several balconies and even a roof terrace. (See virtual impressions)

Currently, the house has four bedrooms and a living room at the front of the third floor. There are balconies at the front and rear of the second floor. Naturally, the property is located on private land and will be delivered empty and rent-free.

The property is part of the so-called ‘maandenpanden’ from around 1890. On the facade are tiles with images representing the months January to June, each with a matching activity. This unique decoration adds to the monumental value of the property.

ENVIRONMENT:
Welcome to De Pijp. Located in one of Amsterdam's most popular and lively neighbourhoods, you will find this beautiful flat. De Pijp is one of the most vibrant and diverse neighbourhoods of Amsterdam, known for its lively atmosphere, cultural diversity and an abundance of culinary hotspots such as Het Paardje, Café Caron, Ceintuur Theater and Brut de Mer, among others. A stone's throw away is the famous Albert Cuyp market, where you can buy fresh produce, flowers, clothes and street food every day.

The property borders the Sarphatipark and offers an oasis of calm in the middle of the bustling city. The park is equipped with various facilities, including a playground, play forest, sports fields for volleyball and basketball, and table tennis tables. Surrounding the park are characteristic buildings from the late 19th century, adding to the historic atmosphere of the area. The combination of green space, architectural charm and urban amenities makes Sarphatipark a unique location in Amsterdam.

The location is characterised by excellent accessibility by public transport. With the North/South line around the corner, Amsterdam Central and Amsterdam South railway stations are easy to reach. The various tram and bus lines also contribute to the excellent accessibility.

In short: living in an absolutely prime location with the beloved Sarphatipark as your front garden and all city amenities within easy reach.

OVERALL LAYOUT:
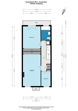
This double upper house is located on the second and third floors. You therefore have no upstairs neighbours and also a private entrance at street level. Upon entering via the well-kept stairwell, you reach both living floors.

The second floor, the first floor of this flat which is characterised by the generous ceiling height, is the bedroom floor. Here you will find three bedrooms as well as the bathroom with bathtub, shower and toilet. Next to the bathroom is a separate room for the washing machine and dryer. From the spacious front bedroom you have access to the French balcony with beautiful views over the Sarphatipark. The rear bedroom provides access to the spacious and sunny south-facing balcony.

The third floor is the second living floor. The open kitchen, situated in the middle of the living floor, is equipped with all conceivable (built-in) appliances. Currently, this floor has a bedroom at the rear. With a relatively limited structural alteration, you can move the bedroom into the living room, creating a beautiful open (pass-through) living room.

There is also the possibility, subject to obtaining the necessary permit, to realise a balcony at the rear of the living floor and a roof terrace on the flat roof of the building (at the buyer's risk and expense). A separate toilet with hand basin can be found in the hallway of the residential floor.

OWNERS' ASSOCIATION:
The Owners' Association is currently in formation. This means that the formal establishment, including registration with the Chamber of Commerce and drawing up the necessary documentation, is still taking place. The division permit is expected to be granted shortly. Fugro has already issued the required foundation quality report (so-called code 2).

By means of the deed of subdivision, the Owners' Association formally approves the realisation of a roof terrace as well as a balcony at the rear of the third floor. The buyer should take care of the necessary environmental permit for this purpose (account and risk of the buyer).

OWNERSHIP SITUATION:
The property is located on private land. There is therefore no leasehold.

PARKING:
Permit area: South 3.2 De Pijp Zuid. There is currently a waiting list of about 5 months. With an electric car you can get priority if you meet the conditions for an environmental parking permit (source: municipality of Amsterdam dated April 2025).

PARTICULARS:
- Located in the popular De Pijp neighbourhood;
- fantastic location at the Sarphatipark;
- living area: 142 m2 (NEN2580 measurement report available);
- energy label A+ (in combination with solar panels);
- located on own ground;
- Association of Owners in formation, service costs to be determined;
- ideal location in relation to public transport and roads;
- possibility to realise third floor balcony and roof terrace (subject to obtaining permission);
- delivery in consultation, but not before 1 July 2025;
- subject to written consent seller;
- project notary Buma & Algera Notariaat (because of division).

For more information about this property and/or to make an appointment for a viewing, please contact our office. Our staff will be happy to assist you.

This property is offered in accordance with Article 7:17 paragraph 6 of the Civil Code. The given features are only meant as an indication. General old age clause, clause ‘owner has not been an occupant’ and NEN2580-clause are applicable to this object.

Kaart

Features

Offer

Reference number
02771
Asking price
€1,045,000
Status
Sold
Acceptance
By consultation
Offered since
30 April 2025
Last updated
25 June 2025

Construction

Type of residence
Apartment, upstairs apartment, 2-storey upstairs flat
Floor
2nd floor
Type of construction
Existing estate
Construction period
1890
Isolations
Floor
HR glazing

Surfaces and content

Floor Surface
142 m²
Content
231 m³
External surface area
7 m²

Layout

Number of floors
2
Number of rooms
5 (of which 4 bedrooms)
Number of bathrooms
1 (and 1 separate toilet)

Outdoors

Location
City centre
Near park
Near public transport
Near school

Energy consumption

Energy certificate
A+

Boiler

Type of boiler
Nefit Topline HRC30
Heating source
Gas
Year of manufacture
2012
Boiler ownership
Owned

Features

Water heating
Central heating system
Heating
Central heating
Ventilation method
Mechanical ventilation
Has a balcony
Yes
Has ventilation
Yes

Cadastral informations

Cadastral designation
Amsterdam R 2389
Range
Condominium
Ownership
Full ownership