Nederlands
For sale:Prinsengracht 151E, 1015 DR Amsterdam - Photo
+64

Prinsengracht 151E 1015 DR Amsterdam €1,200,000

  • Apartment
  • 3 rooms
  • 2 bedrooms
  • 2 Bathrooms
  • Construction year 1980
  • 94 m² liveable area
  • Upholstered
  • C Energy certificate C
Stunning Penthouse in Prime Location on the Prinsengracht

Description

Zeer Fraai Penthouse op Toplocatie aan de Prinsengracht

***For English see below***

Uniek penthouse op een van de meest geliefde locaties van Amsterdam, met schitterende raampartijen en een betoverend uitzicht over de Prinsengracht en de Noordermarkt.

Vanaf het royale dakterras én vanuit de woning zelf geniet je van ongeëvenaard uitzicht – een zeldzame combinatie van licht, ruimte en privacy in het hart van de stad.

Achter de karakteristieke gevel van de voormalige Louise-bewaarschool bevindt zich een modern appartementencomplex (ca. 1980), ontworpen door architect Sjoerd Soeters.

De bijzondere architectuur en unieke sfeer zijn voelbaar in elk detail van deze maisonnette op de tweede en derde verdieping.

Begane grond:
De entree is kleurrijk en uitnodigend. Hier is een gedeelde binnentuin en voldoende ruimte voor het stallen van je (elektrische) fietsen.

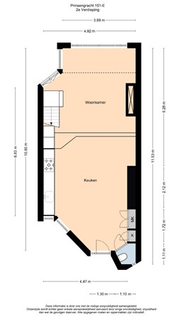
Tweede verdieping:
Via een gemakkelijke trap bereik je de voordeur van de woning. Bij binnenkomst stap je in een ruime, lichte woonkeuken met een robuust rvs-aanrechtblad, een gasfornuis, afzuigkap, vaatwasser, koelkast, vriezer en wasmachine. Garderobekasten en een gastentoilet bevinden zich eveneens aan deze zijde van de verdieping.
Twee treden hoger ligt de sfeervolle woonkamer met dubbele openslaande deuren van een Frans balkon, een designtrap en een indrukwekkende raampartij. Hier kijk je uit over de gracht en de Noordermarkt en geniet je van de middag- en avondzon. Een ethanolhaard zorgt voor warmte en gezelligheid in de avonden, aangevuld met het romantische uitzicht op de verlichte grachten.

Derde verdieping:
Op deze verdieping vind je twee slaapkamers, een luxe badkamer en een inloopkast. De badkamer – centraal gelegen tussen de slaapkamers – beschikt over een toilet, bidet, dubbele wastafel, handdoekradiator en een inloop-regendouche.
De slaapkamer aan de voorzijde biedt extra luxe: een vrijstaand bad, een glazen wand met zicht op de woonkamer én het grachtzicht. Vanuit deze kamer heb je toegang tot een klein balkon aan de voorzijde. De tweede slaapkamer ligt aan de rustige achterzijde van het pand.

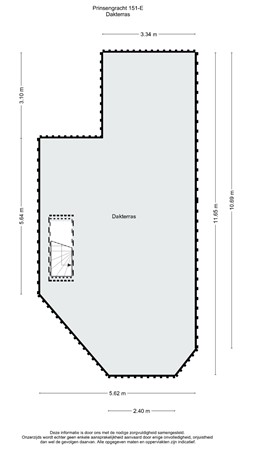
Dakterras:
Het royale, zonnige dakterras biedt een oase van rust met een fenomenaal uitzicht over de stad. Hoewel het terras al jarenlang in gebruik is, is er geen formele vergunning bekend. Er is 1 buurwoning die ook toegang heeft tot het dakterras. Een opbouw lijkt mogelijk – net als bij de naastgelegen woning.

Locatie & Voorzieningen
Gelegen aan een van de mooiste stukjes van de Prinsengracht, tussen de Brouwersgracht en de Prinsenstraat. De Noordermarkt, de Jordaan, Haarlemmerstraat en de Negen Straatjes liggen letterlijk om de hoek. Alles wat Amsterdam aantrekkelijk maakt – unieke winkels, galeries, restaurants, cafés, parken – bevindt zich op loopafstand.
Binnen enkele minuten wandel je naar het Westerpark of Frederik Hendrikplantsoen. Het Centraal Station en diverse tram- en buslijnen (Marnixstraat) zijn eveneens op loopafstand. Ondanks de centrale ligging is de woning opvallend rustig gelegen.

VvE & Gebouw
De Vereniging van Eigenaren is actief en professioneel beheerd. De VvE bestaat uit 7 leden en beschikt over een Meerjarenonderhoudsplan (MJOP), opstalverzekering, aansprakelijkheidsverzekering en voldoende reserves. De maandelijkse bijdrage bedraagt €286,27. Er is tevens een gemeenschappelijke binnentuin en een gemeenschappelijk tuinhuis, dat verhuurd wordt en bijdraagt aan lagere servicekosten.

Bijzonderheden
* Toplocatie aan de Prinsengracht met uitzicht op de Noordermarkt
* Zonnige ligging met middag- en avondzon aan de grachtzijde
* Eigen grond (geen erfpacht)
* Circa XYZ m² woonoppervlak (NEN2580 gemeten)
* Unieke en speelse indeling met hoogteverschillen en doorkijkjes
* Modern en vrijwel volledig gerenoveerd in 2017
* Woning verdeeld over twee verdiepingen (tweede en derde)
* Eigen balkon
* Royaal dakterras
* Mogelijkheid tot opbouw (vergunning vereist)
* Origineel ontwerp, sfeervolle gemeenschappelijke ruimtes
* Droge, veilige fietsenstalling
* Gezonde en actieve VvE
* Turn-key: meubels kunnen worden overgenomen
* Niet-bewoningsclausule van toepassing

Parkeren
Bewonersvergunning kost €326,65 per 6 maanden. De geschatte wachttijd bedraagt ca. 30 maanden (mei 2025). Bij een elektrische auto is voorrang mogelijk bij een milieuvergunning. Tweede vergunningen worden in dit gebied niet meer uitgegeven.

Disclaimer
Deze informatie is met grote zorg samengesteld. Er kunnen echter geen rechten aan worden ontleend. Oppervlakten zijn indicatief. Meetinstructie conform NEN2580.
________________________________________

Stunning Penthouse in Prime Location on the Prinsengracht

***Voor Nederlands zie hierboven***

A unique penthouse situated in one of Amsterdam’s most sought-after locations, featuring magnificent windows and enchanting views over the Prinsengracht and the Noordermarkt.

From both the spacious rooftop terrace and inside the apartment, you’ll enjoy unparalleled panoramic views – a rare blend of light, space, and privacy in the vibrant heart of the city.

Behind the characteristic façade of the former Louise nursery school lies a modern apartment complex (c. 1980), designed by architect Sjoerd Soeters. The distinctive architecture and unique ambiance are reflected in every detail of this maisonnette, spread over the second and third floors.

Ground floor:
The entrance is colorful and welcoming, with access to a shared inner courtyard and ample space for parking (electric) bicycles.

Second floor:
A gentle staircase leads to the front door of the apartment. Upon entering, you step into a spacious, bright kitchen with a robust stainless-steel countertop, gas stove, extractor hood, dishwasher, fridge, freezer, and washing machine. Wardrobe closets and a guest toilet are also located on this level.

Two steps up is the atmospheric living room featuring double French doors, a designer staircase, and an impressive window section. From here, you enjoy views of the canal and Noordermarkt, with sunlight in the afternoon and evening. A stylish ethanol fireplace adds warmth and coziness, complemented by the romantic view of Amsterdam’s illuminated canals.

Third floor:
This level houses two bedrooms, a luxurious bathroom, and a walk-in closet. The centrally located bathroom includes a toilet, bidet, double sink vanity, towel radiator, and walk-in rain shower.

The front bedroom offers added luxury with a freestanding bathtub, a glass wall overlooking the living room, and views of the canal. This room also provides access to a small private balcony. The second bedroom is situated at the quieter rear side of the property.

Rooftop terrace:
The expansive, sunny rooftop terrace provides a peaceful retreat with stunning views across the city. Although it has been in use for many years, no formal permit has been located. One neighboring apartment has access via an emergency route. There appears to be potential for a rooftop extension, as seen in the adjacent property.

Location & Amenities
Located on one of the most beautiful stretches of the Prinsengracht, between Brouwersgracht and Prinsenstraat. Noordermarkt, the Jordaan, Haarlemmerstraat, and the “Nine Streets” are just around the corner. Everything that makes Amsterdam special—boutique shops, galleries, restaurants, cafés, and parks—is within walking distance.

You’re just minutes from Westerpark and Frederik Hendrikplantsoen. Amsterdam Central Station and multiple tram and bus lines (via Marnixstraat) are also nearby. Despite the central location, the apartment remains surprisingly quiet.

Homeowners’ Association (VvE) & Building
The Homeowners’ Association is active and professionally managed. It consists of 7 members and includes a multi-year maintenance plan (MJOP), building insurance, liability insurance, and healthy reserves. Monthly contributions are €286.27. There’s also a communal courtyard and a shared garden house, which is rented out to help reduce service costs.

Highlights
* Prime location on the Prinsengracht with views of the Noordermarkt
* Sun-facing living areas with afternoon and evening sun
* Freehold property (no ground lease)
* Approx. XYZ m² living space (measured according to NEN2580)
* Unique and playful layout with varied ceiling heights and visual connections
* Modernized and nearly fully renovated in 2017
* Spread across two levels (second and third floors)
* Private balcony and generous rooftop terrace
* Potential for rooftop extension (subject to permits)
* Original design and charming communal spaces
* Dry, secure bike storage
* Healthy and active Homeowners’ Association
* Turn-key: furnishings can be included
* Non-residency clause applies

Parking
A residential parking permit costs €326.65 per 6 months (as of May 2025). The estimated wait time is approximately 30 months. Priority is possible for electric vehicles under the environmental permit scheme. A second permit is not available due to limited space.

Disclaimer
This information has been compiled with great care. However, no rights can be derived from its contents. Measurements are indicative and follow NEN2580 guidelines.

Kaart

Features

Offer

Reference number
VH00398
Asking price
€1,200,000
Service costs
€286.27
Electricity
€40
Gas
€220
Water
€20
Upholstered
Yes
Upholstered
Upholstered
Acceptance
By consultation
Offered since
05 September 2025
Last updated
06 October 2025

Construction

Type of residence
Apartment, penthouse, apartment
Floor
2nd floor
Type of construction
Existing estate
Construction period
1980
Roof materials
Bitumen
Rooftype
Flat
Isolations
Party insulated glazing

Surfaces and content

Floor Surface
94 m²
Living area
30 m²
Kitchen area
20 m²
Content
341 m³
External surface area
56 m²
Balcony
1.56 m²

Layout

Number of floors
3
Number of rooms
3 (of which 2 bedrooms)
Number of bathrooms
2 (and 1 separate toilet)

Outdoors

Location
At waterside
City centre
Near public transport
On waterway
Unobstructed view

Garden

Type
Back yard
Condition
Normal

Energy consumption

Energy certificate
C

Boiler

Type of boiler
Intergas Kombi Kompakt HRE 36/30 A
Heating source
Gas
Year of manufacture
2017
Combiboiler
Yes
Boiler ownership
Owned

Features

Water heating
Central heating system
Heating
Central heating
Ventilation method
Mechanical ventilation
Natural ventilation
Kitchen facilities
Built-in equipment
Bathroom facilities Bathroom 1
Bidet
Double sink
Shower
Sink
Toilet
Walkin shower
Washbasin furniture
Bathroom facilities Bathroom 2
Bath
Has a balcony
Yes
Has cable TV
Yes
Has a French balcony
Yes
Garden available
Yes
Has an internet connection
Yes
Has a skylight
Yes
Has ventilation
Yes

Association of owners

Registered at Chamber of Commerce
Yes
Annual meeting
Yes
Periodic contribution
Yes
Reserve fund
Yes
Long term maintenance plan
Yes
Maintenance forecast
Yes
Home insurance
Yes

Cadastral informations

Cadastral designation
Amsterdam m 6021
Area
1,150 m²
Range
Condominium