Nederlands
For sale:Oeverpad 575, 1068 PM Amsterdam - Photo
+49

Oeverpad 575 1068 PM Amsterdam €625,000

  • Apartment
  • 3 rooms
  • 2 bedrooms
  • 1 Bathrooms
  • Construction year 2005
  • 6,431 m² plot size
  • 146 m² liveable area
  • A+ Energy certificate A+

Description

Wonen met uitzicht over de Sloterplas – Oeverpad 575, Amsterdam

Aan de westzijde van Amsterdam, direct aan de Sloterplas, ligt dit uitzonderlijk ruime en lichte appartement van maar liefst 146 m². Gelegen op de vierde verdieping van een modern complex (bouwjaar 2005) in de geliefde wijk Amsterdam-West, biedt Oeverpad 575 alles wat starters, jonge gezinnen en expats zoeken: comfort, ruimte, licht en een uniek vrij uitzicht.

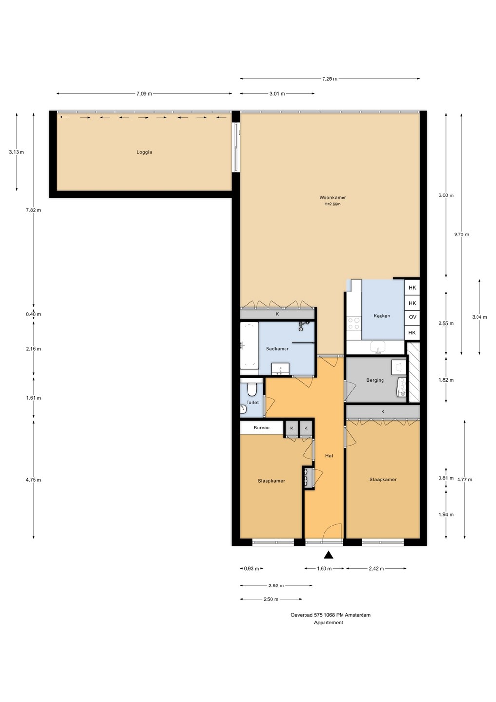
Indeling;
Op de begane grond bevindt zich de verzorgde gemeenschappelijke entree met brievenbussen en bellentableau. Vanuit hier is er toegang tot de afgesloten binnenplaats met eigen parkeerplaats en de bergingen.

Via de lift bereikt u de vierde verdieping. Het appartement ligt aan de galerij en biedt bij binnenkomst een ruime hal met toegang tot alle vertrekken.
Aan de voorzijde bevinden zich twee slaapkamers:
- De royale master bedroom met ruime inbouwkast
- Een tweede slaapkamer met geïntegreerd bureau – ideaal als kinder-, werk- of logeerkamer

De woonkamer is zonder twijfel het hart van de woning: uitzonderlijk ruim, bijzonder licht en voorzien van een volledige raampartij over de gehele breedte. Hier geniet u dagelijks van een panoramisch uitzicht over de Sloterplas.

De open keuken is compleet uitgerust met alle wenselijke inbouwapparatuur en sluit naadloos aan op de leefruimte. Vanuit de woonkamer is er toegang tot de serre, die flexibel in te richten is als extra zitruimte, werkplek of speelruimte.

De badkamer is compleet uitgevoerd met:
- Inloopdouche
- Ligbad
- Badkamermeubel met wastafel

Daarnaast beschikt de woning over een separaat toilet en een aparte wasruimte met cv-opstelling en WTW-installatie.

Erfpacht;
De woning is gelegen op gemeentelijke erfpacht (voortdurend recht) onder de voorwaarden AB2000. Het huidige tijdvak loopt tot en met 30 november 2053.
De jaarlijkse canon bedraagt € 3.345,02 en wordt jaarlijks geïndexeerd.

Kenmerken;
* Woonoppervlakte: 146,2 m² (NEN 2580 gemeten)
* Energielabel A+
* Eigen parkeerplaats én berging
* Professioneel beheerde VvE (VT200)
* Servicekosten: € 289,85 per maand
* Lift aanwezig
* Vrij en ruim uitzicht over de Sloterplas
* Leeg en per direct beschikbaar
* Volledig gelijkvloers wonen

*****Translation******

Living with a View over the Sloterplas – Oeverpad 575, Amsterdam

On the western side of Amsterdam, directly overlooking the Sloterplas, you will find this exceptionally spacious and bright apartment of no less than 146 m². Situated on the fourth floor of a modern residential complex (built in 2005) in the highly sought-after district of Amsterdam-West, Oeverpad 575 offers everything starters, young families, and expats are looking for: comfort, space, natural light, and a unique unobstructed view.

Layout:
The well-maintained communal entrance on the ground floor features mailboxes and an intercom system. From here, there is access to the secured courtyard with a private parking space and the storage units.

The apartment is reached via elevator to the fourth floor. Located along the gallery, the property welcomes you into a spacious hallway providing access to all rooms.

At the front of the apartment, you will find two bedrooms:
- A generous master bedroom with a large built-in wardrobe
- A second bedroom with an integrated desk – ideal as a child’s room, home office, or guest room

The living room is undoubtedly the heart of the home: exceptionally spacious, filled with natural light, and featuring floor-to-ceiling windows across the entire width of the apartment. From here, you can enjoy panoramic views over the Sloterplas every single day.

The open-plan kitchen is fully equipped with all desirable built-in appliances and seamlessly connects to the living area. From the living room, you have access to the conservatory, which can be flexibly arranged as an additional seating area, workspace, or playroom.

The bathroom is fully fitted with:
- Walk-in shower
- Bathtub
- Vanity unit with washbasin
Additionally, the apartment includes a separate toilet and a dedicated laundry/utility room with central heating system and heat recovery ventilation (HRV).

Leasehold;
The property is situated on municipal leasehold land (perpetual leasehold) under the AB2000 conditions.
The current lease period runs until November 30, 2053.
The current annual ground rent amounts to €3,345.02 and is subject to annual indexation.

Key Features;
* Living area: 146.2 m² (measured in accordance with NEN 2580)
* Energy label A+
* Private parking space and separate storage unit
* Professionally managed homeowners’ association (VT200)
* Service charges: €289.85 per month
* Elevator present
* Wide and unobstructed views over the Sloterplas
* Vacant and available immediately
* Fully single-level living

Kaart

Features

Offer

Reference number
03551
Asking price
€625,000
Service costs
€289.84
Upholstered
Not furnished
Furnishing
Unfurnished
Acceptance
By consultation
Offered since
16 February 2026

Construction

Type of residence
Apartment, gallery flat, apartment
Floor
4th floor
Type of construction
Existing estate
Construction period
2005
Roof materials
Bitumen
Rooftype
Flat
Isolations
Full
HR glazing
Insulated glazing

Surfaces and content

Plot size
6,431 m²
Floor Surface
146 m²
Content
467 m³
Surface area other inner rooms
4.4 m²

Layout

Number of floors
1
Number of rooms
3 (of which 2 bedrooms)
Number of bathrooms
1 (and 1 separate toilet)

Outdoors

Location
At waterside
Residential area
Unobstructed view

Energy consumption

Energy certificate
A+

Boiler

Type of boiler
NEFIT Proline
Heating source
Gas
Year of manufacture
2013
Combiboiler
Yes
Boiler ownership
Owned

Features

Number of parking spaces
1
Water heating
Central heating system
Heating
Central heating
Ventilation method
Balnced ventilation
Mechanical ventilation
Natural ventilation
Bathroom facilities
Bath
Sink
Walkin shower
Washbasin furniture
Parking
Parking lot
Has an elevator
Yes
Has fibre optical cable
Yes
Has an internet connection
Yes
Has a storage room
Yes
Has ventilation
Yes

Association of owners

Registered at Chamber of Commerce
Yes
Annual meeting
Yes
Periodic contribution
Yes
Reserve fund
Yes
Long term maintenance plan
Yes
Home insurance
Yes

Cadastral informations

Cadastral designation
Sloten D 8336
Area
6,431 m²
Range
Condominium
Ownership
Property encumbered with ground lease
Index number
94
Charges
Progressing, €3,345.02 per year