Nederlands
Sold:Herengracht 187B, 1016 BE Amsterdam - Photo
Sold
+30

Herengracht 187B 1016 BE Amsterdam

  • Apartment
  • 3 rooms
  • 2 bedrooms
  • 2 Bathrooms
  • Construction year 1900
  • 112 m² liveable area
  • D Energy certificate D

Description

Living in a stately former bank building with international allure: Charming maisonette of approx. 112 m² on the first and second floors of the prestigious “Den Grooten Heer” complex. The apartment offers a generous, light-filled living room with balcony overlooking the landscaped courtyard, a modern (semi-)open kitchen, two bedrooms each with its own en-suite bathroom, and three toilets in total. Residents enjoy exceptional on-site facilities: an indoor heated swimming pool, sauna, gym, communal terraces, caretaker, and two lifts.

Layout:

First floor
Entrance via the monumental main entrance and glass atrium; private front door on the first floor. Hall with cloakroom and guest toilet. Wide living room with abundant natural light and French doors to the balcony facing the sheltered courtyard. (Semi-)open kitchen with built-in appliances.

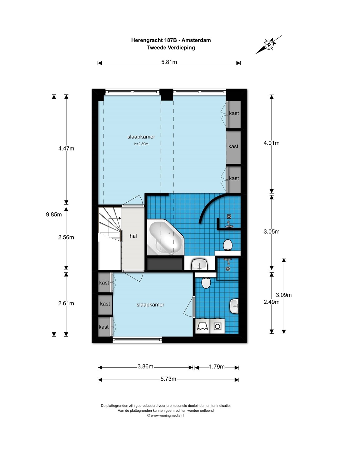
Second floor
Landing. Primary bedroom with en-suite bathroom featuring a bathtub, walk-in shower, double washbasin, and toilet. Second bedroom also with en-suite bathroom, equipped with shower, washbasin, toilet, and washing machine connection.

Location & surroundings:
Situated on a quiet yet central stretch of the Herengracht, on the edge of the Jordaan, between Dam Square and the Westerkerk. "De negen straatjes" cafés, restaurants, and shops are all within easy walking distance. Thanks to the central location, daily amenities are conveniently reachable on foot.

Accessibility:
Public transport: various tram and bus lines and Amsterdam Central Station within walking distance; the metro is also easily accessible.
By car: the A10 ring road can be reached quickly via city routes. Parking via street (permit/paid) or nearby facilities.

Key features:

- Living area (NEN 2580): approx. 112 m²
- Located on freehold land
- Building-related outdoor space (balcony): approx. 2.1 m²
- 2 bedrooms, 2 en-suite bathrooms, 3 toilets
- Monumental complex with swimming pool, sauna, gym, communal terraces, caretaker, and two lifts

Kaart

Features

Offer

Reference number
1062
Asking price
€995,000
Service costs
€429.37
Upholstered
Not furnished
Furnishing
Unfurnished
Status
Sold
Acceptance
By 15 December 2025
Offered since
23 October 2025
Last updated
14 January 2026

Construction

Type of residence
Apartment, maisonette, apartment
Floor
1st floor
Type of construction
Existing estate
Construction period
1900

Surfaces and content

Floor Surface
112 m²
Content
372 m³
External surface area
2.1 m²

Layout

Number of floors
2
Number of rooms
3 (of which 2 bedrooms)
Number of bathrooms
2 (and 1 separate toilet)

Outdoors

Location
At waterside
City centre
Near public transport

Energy consumption

Energy certificate
D

Boiler

Heating source
Gas
Boiler ownership
Owned

Features

Heating
Air conditioning
Central heating
Ventilation method
Mechanical ventilation
Bathroom facilities Bathroom 1
Bath
Sink
Toilet
Walkin shower
Bathroom facilities Bathroom 2
Shower
Sink
Toilet
Has AC
Yes
Has a balcony
Yes
Has cable TV
Yes
Has an elevator
Yes
Has a sauna
Yes
Has a swimming pool
Yes
Has ventilation
Yes

Association of owners

Registered at Chamber of Commerce
Yes
Annual meeting
Yes
Periodic contribution
Yes
Reserve fund
Yes
Home insurance
Yes

Cadastral informations

Cadastral designation
Amsterdam E 9362
Range
Condominium
Index number
115