Nederlands
Under offer:Bilderdijkstraat 39-1, 1053 KK Amsterdam - Photo
Under offer
+42

Bilderdijkstraat 39-1 1053 KK Amsterdam €495,000

  • Apartment
  • 2 rooms
  • 1 bedroom(s)
  • 1 Bathroom
  • Construction year 1902
  • 68 m² liveable area
  • Furnished
  • C Energy certificate C

Description

NEW ON THE MARKET:
Located in a vibrant and central area on the popular Bilderdijkstraat in Amsterdam Oud-West, this bright and charming 68 m² apartment features perpetual ground lease fixed for the period after 2057. The property offers a spacious bedroom adjacent to a green roof and a wonderfully quiet balcony of 6 m², making it the ideal base from which to fully enjoy everything Amsterdam has to offer.

In the lively Da Costabuurt, there’s always something happening. Everything is within easy reach here: from chic restaurants to (organic) supermarkets and trendy coffee spots. Whether you’re looking for fine dining, a relaxed lunch venue, or simply a great cappuccino, it’s all just a few steps from your front door.

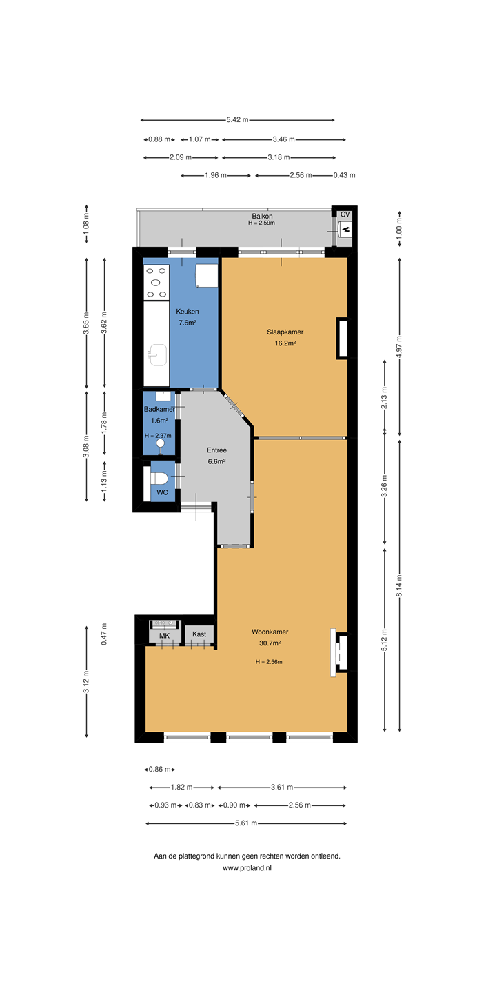
LAYOUT:
Through the neat, shared staircase you reach the entrance on the first floor. The hallway offers space for coats and bags and provides access to almost all rooms.
The spacious living room at the front is immediately filled with natural light thanks to the large windows. The view of Amsterdam’s lively street life is like a living painting that never gets old. The living area is large enough for a comfortable sitting area as well as a cozy dining corner. A charming (decorative) fireplace adds character and enhances the warm, homely atmosphere. Smartly designed built-in cupboards offer additional storage space.

At the rear, you’ll find the separate kitchen, equipped with ample cabinet space and various (built-in) appliances, making it easy to prepare elaborate meals. The generous bedroom adjoins the balcony and offers enough space for a large double bed and a spacious wardrobe.

The bathroom is fully equipped with a walk-in shower, washbasin with cabinet, and a radiator for wonderfully warm towels in the morning. The toilet is separate and accessible from the hallway. Finally, the property includes a convenient storage room of approx. 5 m² on the fourth floor.

GROUND LEASE (ERFPACHT):
The current ground lease is subject to a five-year indexation period. The annual ground rent (canon) currently amounts to €1,459.06, which is the fixed amount for the next five years.

The ground lease has been converted to perpetual leasehold for the period after 15 February 2057, with the ground rent fixed at €1,103.68 per year, subject to an annual indexation of 2.39%.

SURROUNDINGS:
Welcome to the heart of Oud-West, on the lively and charming Bilderdijkstraat. Here you live surrounded by everything that makes Amsterdam so special. As soon as you step outside, you’re immersed in the city’s vibrant energy: cozy cafés and trendy restaurants such as Karavaan, Lot 61, Café Binnenvisser, nNea, and Little Collins are just around the corner. For a culinary or cultural evening, simply head to the popular Hallen – the hotspot for food, film, and socializing.

Within just a few minutes’ walk, you’ll find the iconic Vondelpark, a green oasis where you can jog, stroll, or simply enjoy peace and quiet in the middle of the city. And for an authentic Amsterdam vibe, you can easily wander into the Jordaan, with its charming streets, boutiques, and lively terraces.

Accessibility is excellent: several tram lines (7, 13, and 19) will take you across the city in no time, and by car you can reach the A10 ring road within minutes.
In short, a location where urban vibrancy, comfort, and convenience come together effortlessly.

DETAILS:
- Foundation renewed in 2001
- Central heating system (2022)
- Energy label C
- Storage room on 4th floor approx. 5 m²
- VvE (homeowners’ association) contribution €165.95 per month
- VvE professionally managed by Delair Vastgoedbeheer B.V.
- Double glazing throughout
- Notary chosen by buyer, within the ring road
- Transfer date negotiable, quick completion possible

The measurement instruction is based on NEN2580. This instruction is intended to apply a more uniform measurement method for indicating the usable floor area. Differences in measurement results cannot be entirely excluded, for example due to differences in interpretation, rounding, or limitations when carrying out the measurement.

Kaart

Features

Offer

Reference number
03542
Asking price
€495,000
Service costs
€165.95
Electricity
€65
Gas
€55
Water
€25
Furnishing
Optional
Status
Under offer
Acceptance
By consultation
Offered since
13 January 2026
Last updated
27 February 2026

Construction

Type of residence
Apartment, mezzanine, apartment
Floor
1st floor
Type of construction
Existing estate
Accessibility
Seniors
Construction period
1902
Roof materials
Bitumen
Rooftype
Flat
Isolations
Cavity wall
HR glazing
Insulated glazing

Surfaces and content

Floor Surface
68 m²
Content
211 m³
Surface area other inner rooms
1 m²
External surface area storage rooms
5 m²
External surface area
6 m²

Layout

Number of floors
1
Number of rooms
2 (of which 1 bedroom)
Number of bathrooms
1 (and 1 separate toilet)

Outdoors

Location
City centre
Near public transport
Near school

Energy consumption

Energy certificate
C

Boiler

Type of boiler
Intergas Kombikompakt HRE 28/24A CW4
Heating source
Gas
Year of manufacture
2022
Combiboiler
Yes
Boiler ownership
Owned

Features

Water heating
Central heating system
Heating
Central heating
Ventilation method
Natural ventilation
Has a balcony
Yes
Has cable TV
Yes
Has a flue tube
Yes
Has fibre optical cable
Yes
Has a phone line
Yes
Has an internet connection
Yes
Has a storage room
Yes

Association of owners

Registered at Chamber of Commerce
Yes
Annual meeting
Yes
Periodic contribution
Yes
Reserve fund
Yes
Long term maintenance plan
Yes
Home insurance
Yes

Cadastral informations

Cadastral designation
Amsterdam Q 8158
Range
Condominium
Ownership
Ground lease
Index number
A-28
Charges
Progressing, €1,459.06 per year