Nederlands
Under offer:Baetostraat 7H, 1055 EP Amsterdam - Photo
Under offer
+28

Baetostraat 7H 1055 EP Amsterdam €450,000

  • Apartment
  • 3 rooms
  • 2 bedrooms
  • 1 Bathrooms
  • Construction year 1940
  • 67 m² liveable area
  • Furnished
  • D Energy certificate D

Description

For sale in Amsterdam West:

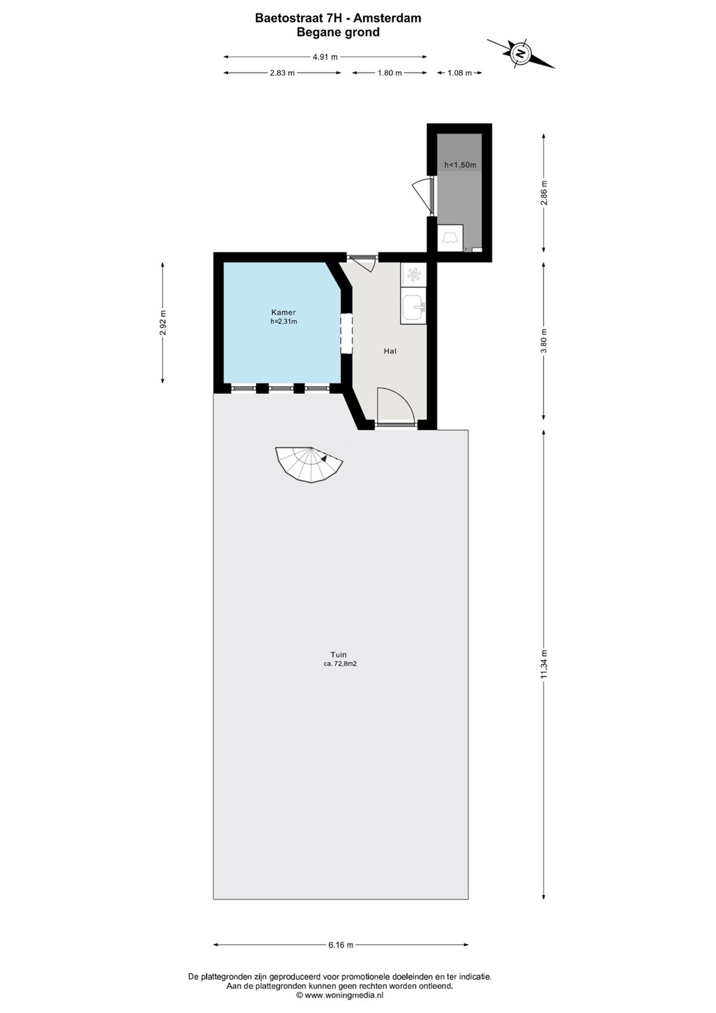
This ideally laid out 2/3-room apartment is located on the first floor on Baetostraat in the popular Bos en Lommer neighborhood. The apartment has a total living area of approximately 67 m2, a spacious garden, and two balconies(!). The apartment has been recently renovated and has a separate office/study adjacent to the sunny garden of approximately 72 m2.

SURROUNDINGS:
The apartment is located on a quiet street in the Bos en Lommer / Landlust neighborhood in Amsterdam West. Westerpark and Erasmuspark are just a stone's throw away. These versatile and beloved city parks have something to offer all year round, whether you want to jog, walk, visit a festival, or relax on the terrace at the Westergasfabriek.

Along Bos en Lommerweg, Jan van Galenstraat, and Hugo de Grootplein, you will find a wide range of shops, specialty stores, and restaurants, including Abbey, Farine, Friedhats Fuku, Eetcafé Edita, and No Man's Art Gallery & Bar. The property is easily accessible: various tram and bus lines are just around the corner, and you can reach Sloterdijk Station or the city center in a few minutes by bike. By car, you can reach the A10 ring road in no time. In short, a great location with the city at your feet and plenty of greenery in the neighborhood.

GENERAL LAYOUT:
The well-maintained staircase leads to this lovely apartment on the first floor. At the front is the spacious and bright living room, where the abundance of greenery in the street provides peace, privacy, and a pleasant atmosphere. From here, you have access to the balcony at the front (west-facing).

At the rear is the separate kitchen, equipped with modern built-in appliances such as a fridge/freezer, oven, induction hob, and dishwasher. From the kitchen, you step onto the sunny balcony, with stairs leading to the exceptionally spacious backyard of approx. 72 m², a wonderful place to relax, garden, or enjoy outdoor dining.

Unique to this property is the extra work/study room in the basement, accessible from the garden. Here you will also find a practical separate laundry room with space for a washing machine and/or dryer. Ideal for those who want to work from home or are looking for a quiet hobby room.

The spacious bedroom has ample storage space and French doors to the balcony on the garden side. The recently renovated bathroom is tastefully decorated and equipped with a shower, sink, and floating toilet.

In short: a bright and well-maintained apartment with plenty of outdoor space and an extra study room—a unique combination in this sought-after location.

OWNERSHIP SITUATION:
This apartment is located on leasehold land, which has been purchased in perpetuity!

PARKING:
Permit area: West-3.1 | With a parking permit for West-3.1, you can park in West-3 and Adolf van Nassaustraat. There is currently no waiting list for this permit area. (source: municipality of Amsterdam, November 2025).

HOMEOWNERS' ASSOCIATION:
The homeowners' association called “VvE Baetostraat 1-22 & Bos en Lommerweg 240” is an active and healthy association, managed by a professional manager (Stedeplan VvE Beheer). The service costs are currently EUR 121 per month.

SPECIFICATIONS:
- Usable living area: 67 m² (in accordance with NEN2580);
- Recently renovated;
- No fewer than 2 balconies;
- Spacious backyard of approx. 72 m² with rear access;
- Bright and spacious living room;
- HR central heating boiler and underfloor heating;
- near Westerpark and Rembandtpark;
- convenient location for public transport and roads;
- delivery: soon / in consultation;
- project notary: Van den Eerenbeemt Notarissen in Amsterdam;
- the property will be sold including the present furniture.

For more information about this property and/or to make a viewing appointment, please contact our office. Our staff will be happy to assist you.

This property is offered in accordance with Article 7:17(6) of the Dutch Civil Code. The specified characteristics and/or information have been compiled by us with the necessary care. However, we accept no liability for any incompleteness, inaccuracy, or otherwise, or the consequences thereof. All specified sizes and surfaces are indicative only. The specified characteristics are intended as an indication only. The General Age Clause, the seller has not been a resident clause, and the NEN2580 clause apply to this property.

The Measurement Instruction is based on NEN2580. The property has been measured by a professional organization and Amstelland Makelaars B.V. cannot be held responsible for any discrepancies in the measurements provided. The buyer has the opportunity to carry out their own NEN 2580 measurement or have it carried out.

Kaart

Features

Offer

Reference number
02378
Asking price
€450,000
Service costs
€121
Furnishing
Yes
Furnishing
Furnished
Status
Under offer
Acceptance
By consultation
Offered since
30 October 2025
Last updated
05 November 2025

Construction

Type of residence
Apartment, mezzanine, apartment
Floor
1st floor
Type of construction
Existing estate
Construction period
1940
Roof materials
Bitumen
Rooftype
Flat
Certifications
Energy performance advice
Isolations
Floor
Insulated glazing

Surfaces and content

Floor Surface
67 m²
Content
234 m³
Surface area other inner rooms
2 m²
External surface area
8 m²

Layout

Number of floors
2
Number of rooms
3 (of which 2 bedrooms)
Number of bathrooms
1

Outdoors

Location
Near highway
Near public transport
On a quiet street

Garden

Type
Back yard
Has a backyard entrance
Yes
Condition
Beautifully landscaped

Energy consumption

Energy certificate
D

Boiler

Type of boiler
Tzerra Plus 28C
Heating source
Gas
Year of manufacture
2017
Combiboiler
Yes
Boiler ownership
Owned

Features

Water heating
Central heating system
Heating
Central heating
Partial Floor heating
Ventilation method
Mechanical ventilation
Has a balcony
Yes
Has cable TV
Yes
Garden available
Yes
Has a storage room
Yes
Has ventilation
Yes

Association of owners

Registered at Chamber of Commerce
Yes
Annual meeting
Yes
Periodic contribution
Yes
Reserve fund
Yes
Long term maintenance plan
Yes
Maintenance forecast
Yes
Home insurance
Yes

Cadastral informations

Cadastral designation
Sloten Noord-Holland C 10531
Range
Condominium
Ownership
Ground lease
Charges
Perpetually bought off