Nederlands
Sold subject to conditions:Albert Cuypstraat 192-3, 1073 BL Amsterdam - Photo
Sold subject to conditions
+16

Albert Cuypstraat 192-3 1073 BL Amsterdam €425,000

  • Apartment
  • 2 rooms
  • 1 bedroom(s)
  • Construction year 1886
  • 45 m² liveable area
  • B Energy certificate B

Description

Welcome to this beautiful, move-in ready apartment of approximately 45 m², complete with a sunny south-facing balcony.

This charming home is perfect for first-time buyers looking for a modern and comfortable apartment in one of Amsterdam’s most sought-after neighborhoods. An extra advantage: the apartment is located on freehold land, no ground lease!

Stylish and move-in ready apartment
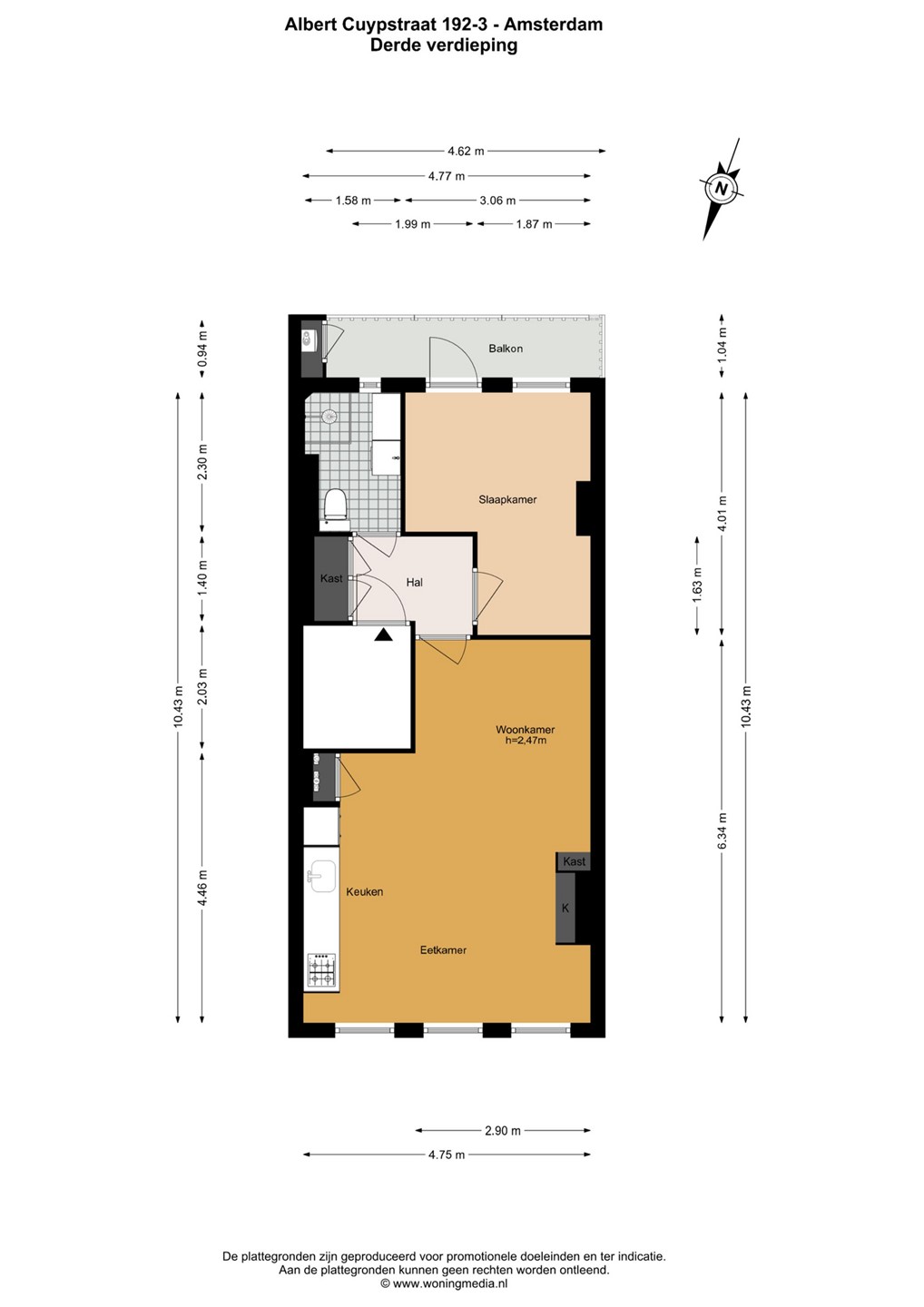
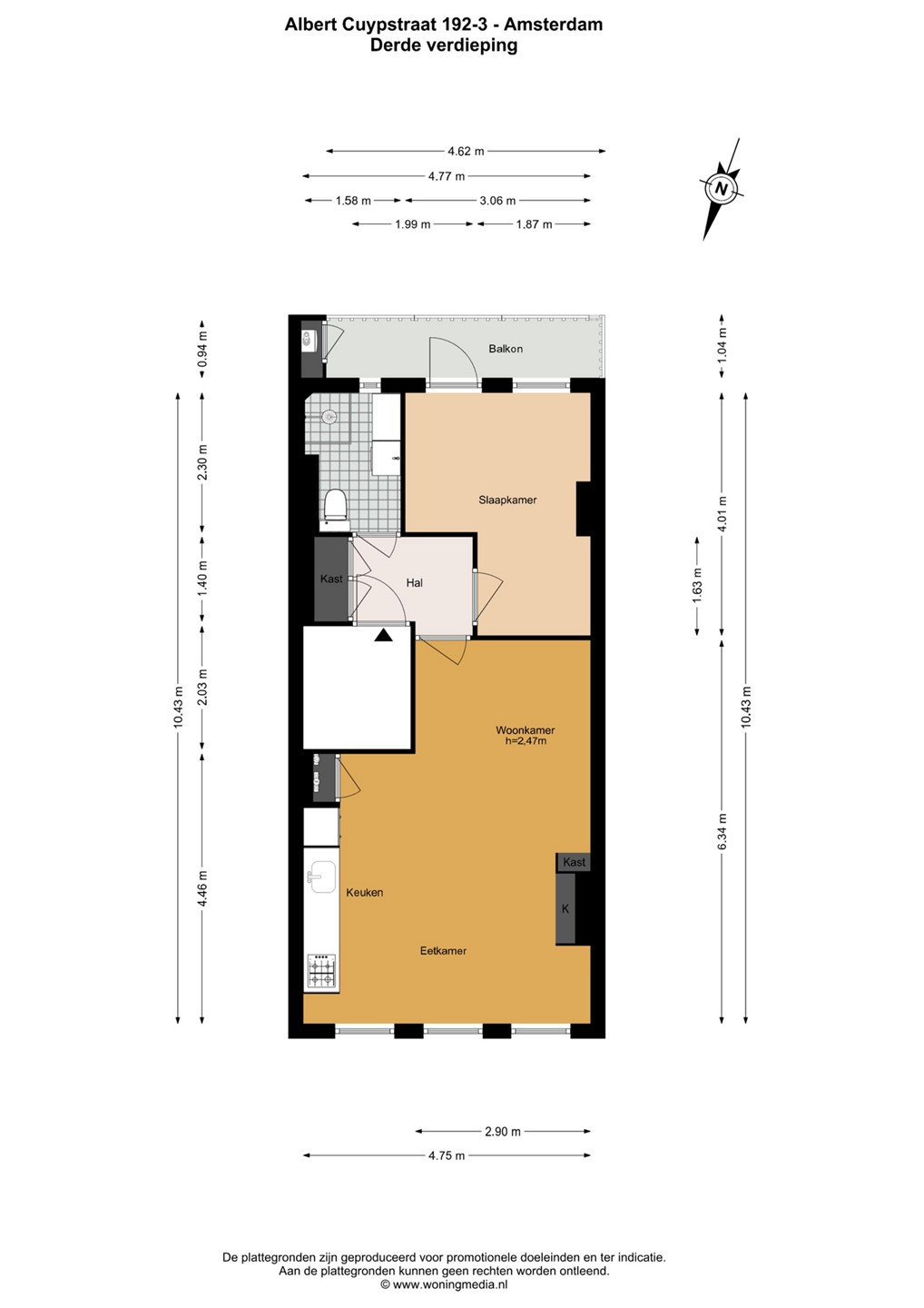
The apartment is situated on the third floor and features a spacious, bright living room thanks to three large windows offering views over the always lively Albert Cuyp Market. The open kitchen is fully equipped with all essential built-in appliances, including a 4-burner gas stove, combi-oven, dishwasher and fridge with freezer compartment. There is also plenty of room for a large dining table.

At the rear is a generous bedroom with enough space for a double bed and wardrobe. From the bedroom, you have direct access to the sunny balcony. The modern bathroom is equipped with a walk-in shower, washbasin with vanity, toilet and towel radiator.

There is also ample space in the hallway for cabinets, and it is equipped with a built-in freezer and a washer-dryer combination.

Location
Living on the Albert Cuypstraat means living in the vibrant heart of De Pijp, an iconic and lively neighborhood where everything you need is within easy reach. The area is known for its charming architecture, youthful and dynamic atmosphere, and wide range of cafés, restaurants, shops and specialty stores. The famous Albert Cuyp Market is literally right outside your door, and for daily groceries you’ll find several supermarkets and boutiques nearby, including those on Ferdinand Bolstraat.
For relaxation, the Sarphatipark is just around the corner. Museumplein, Vondelpark, various museums, theaters and cinemas are also easily accessible.
Metro station De Pijp (North/South line) is only 130–200 meters away, along with multiple tram lines. By bike, you can reach Amstel Station, Zuid, RAI or Central Station within 10 minutes. The A10 Ring Road is easily accessible, and parking is possible with a permit or in nearby parking garages such as the Albert Cuypgarage and Heinekenplein.

Details
- Living area approx. 45,2 m² (NEN 2580)
- Located on freehold land
- Energy label B
- Professionally managed VvE; service charges: 160 euro a month and MJOP (long-term maintenance plan) available
- Standard age clause applies
- Available on short term

Kaart

Features

Offer

Asking price
€425,000
Service costs
€160
Status
Sold subject to conditions
Acceptance
By consultation
Offered since
28 November 2025
Last updated
03 March 2026

Construction

Type of residence
Apartment, upstairs apartment, Apartment
Floor
3rd floor
Type of construction
Existing estate
Year of construction
1886
Roof materials
Bitumen
Rooftype
Flat
Isolations
Insulated glazing

Surfaces and content

Floor Surface
45 m²
Content
142 m³
External surface area
5 m²

Layout

Number of floors
1
Number of rooms
2 (of which 1 bedroom)

Outdoors

Location
City centre
On a busy street

Energy consumption

Energy certificate
B

Boiler

Type of boiler
Remeha
Heating source
Gas
Year of manufacture
2015
Combiboiler
Yes
Boiler ownership
Owned

Features

Water heating
Central heating system
Heating
Central heating
Bathroom facilities
Shower
Sink
Toilet
Has a balcony
Yes
Has ventilation
Yes

Association of owners

Registered at Chamber of Commerce
Yes
Annual meeting
Yes
Periodic contribution
Yes
Reserve fund
Yes
Maintenance forecast
Yes
Home insurance
Yes

Cadastral informations

Cadastral designation
Amsterdam R 7654
Range
Condominium
Ownership
Full ownership
Index number
A5

Media

Floor plans