Nederlands
Rented:Warmondstraat 199-2, 1058 KX Amsterdam - Photo
Rented
+18

Warmondstraat 199-2 1058 KX Amsterdam

  • Apartment
  • 3 rooms
  • 1 bedroom(s)
  • Construction year 1929
  • 62 m² liveable area
  • A Energy certificate A

Description

** CALLS WILL NOT BE SCHEDULED, PLEASE RESPOND VIA THE ADVERTISEMENT AND SCHEDULE YOUR APPOINTMENT DIRECTLY**
** NOT AVAILABLE FOR SHARING **

In the South of Amsterdam next to Hoofddorpplein we offer this unfurnished bright apartment in a charming and quiet street.
Within a 10 minutes walk you are in the popular Vondelpark and also close to station Lelylaan. There are lots of shops, restaurants and take away’s around the corner.

Situated on the 2nd floor of a typical 30’s property you’ll find this lovely 1+ bedroom apartment with loads of daylight due to its many windows at the front. This lovely apartment is equipped with laminate floors, a fully equipped kitchen and a balcony at the back facing East.

Layout:
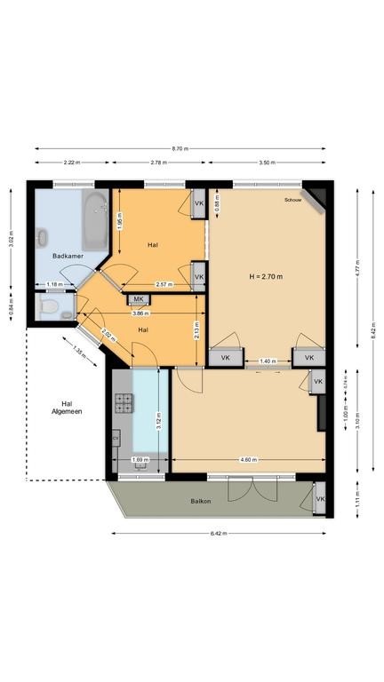
Communal entrance, stairs to the second floor, hallway with toilet and access to all areas, bright living with many windows and side room,(perfect for dining area/ study area), separate kitchen equipped with: dishwasher, gas stove, fridge and oven, bedroom situated at the back side with access to the large balcony facing East, basic bathroom with bath, sink and connection for washing machine, the apartment has lots of built-in cupboards/storage space.

Area:
The Warmondstraat is characterized as a quiet and green street in Amsterdam South. The apartment is located in the first part of Warmondstraat, close to Hoofddorpplein. All amenities are within walking distance, such as supermarkets, shops and specialty stores. There is also no shortage of cozy restaurants in this nice neighborhood: Stadscafé van Mechelen, Norma, Bar Bonnie, Ron Gastrobar and Blauw restaurant are among the many advantages of living in this neighborhood.
Various primary and secondary schools as well as childcare are nearby. For sports and recreation you can visit the nearby Rembrandtpark or the Vondelpark. The accessibility is excellent: there is ample public transport in the vicinity. Parking is no problem; there is always room in front of the door. The A10 ring road (exit 106) is just one minute away and Schiphol is ten minutes away by car.
In short: comfortable living with all amenities within reach!

DETAILS:
- Approx. 62 m2 (not measured according NEN-2580 norm)
- 1+ bedrooms
- Unfurnished
- Bath
- Very energy sufficient with double glazing resulting in an energy rating A
- Located in a quiet street, but close to all shops, tram, restaurants, Vondelpark
- Balcony facing east
- Parking by Municipality permit system

RENTAL CONDITIONS:
- Rental price € 1.995,- excl utilities per month (incl € 75,- service costs)
- Available by March 1st for a minimum of 12 months lease A
- No smoking, no pets allowed
- 2 months deposit
- Not available for sharing
- Subject to landlord approval
- Income requirement: at least 3.7 times the gross monthly rent

**This Property is listed by JLG Real Estate a MVA Certified Expat Broker**

DISCLAIMER
This information has been compiled by us with the necessary care. On our part, however, no liability is accepted for any incompleteness, inaccuracy or otherwise, or its consequences. All sizes and dimensions are indicative.

Kaart

Features

Offer

Price
€1,995 per month (incl. service costs, upholstered)
Status
Rented
Acceptance
By 01 March 2026
Offered since
01 February 2026
Last updated
13 February 2026

Construction

Type of residence
Apartment, upstairs apartment, Apartment
Floor
3rd floor
Type of construction
Existing estate
Year of construction
1929
Isolations
Party insulated glazing

Surfaces and content

Floor Surface
62 m²
Content
171 m³
External surface area
7 m²

Layout

Number of floors
1
Number of rooms
3 (of which 1 bedroom)

Outdoors

Location
On a quiet street
Residential area

Energy consumption

Energy certificate
A
Energy index
1.58

Boiler

Heating source
Gas
Combiboiler
Yes
Boiler ownership
Owned

Features

Water heating
Central heating system
Heating
Central heating
Bathroom facilities
Bath
Sink
Has a balcony
Yes
Has cable TV
Yes
Has ventilation
Yes

Media

Floor plans