Nederlands
Rented:Hoofdweg 54, 1058 BD Amsterdam - Photo
Rented
+66

Hoofdweg 54 1058 BD Amsterdam

  • House
  • 8 rooms
  • 6 bedrooms
  • 2 Bathrooms
  • Construction year 1920
  • 167 m² plot size
  • 227 m² liveable area
  • Upholstered
  • D Energy certificate D

Description

Lovely family home spread of about 227m2 over three floors plus basement, with five bedrooms, two bathrooms, rear garden facing south-west and private roof terrace in a very nice and ideal location in the Baarsjes between the popular Oud Zuid and trendy Oud West, with easy access to the A-10, and via the pleasant Overtoom with its many shops and cafés, to Amsterdam city centre.

N.B. Unfurnished and limited availability for a period of two+ years while owners work abroad.
End dates would be (with potential to renew): 1 Jan 2028 or 1 July 2028 (on consulation)

Contract based on intermediate rent (Model C).
For specific furbishing/furnishing details see below.
Sharing not permitted

Are you looking for space in the city without upstairs or downstairs neighbours; a quiet garden for private dining and to enjoy the fresh air, a playroom for the children or your own study with a view over the trees of the garden? With a second kitchen and an upstairs bedroom with access to shower and toilet, this house also offers a great space for an au-pair. Fully insulated (double glazing (HR/ HR++) and with air conditioning in all bedrooms where possible, this house has an energy label C, so it is economical for a 1920s mansion.

Access to the house via your own front garden with enough space for (cargo) bikes and children's bikes.

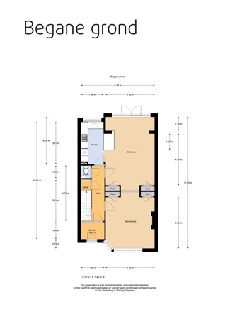
LAYOUT
Ground floor
Through a representative vestibule with original stained glass door you enter the hall, which gives access to the downstairs toilet, the stairs to the upper floor, and the stairs to the basement. A door also provides access to the spacious kitchen.

The kitchen is the beating heart of this family home. With three-meter high ceilings, original stained glass doors to the living room and a modern fully equipped fitted kitchen (SMEG, Bosch and AEG, such as a combination microwave, oven, built-in refrigerator and freezer, dishwasher and a Quooker. The kitchen has a 5-burner gas stove, an extractor hood and a double sink) this is the place for the family and cozy dinners. Folding French doors also provide access to the garden, where you can also eat in peace. The garden furniture can be removed in consultation, but is in good condition and fits in perfectly with the house. For example, the BBQ furniture with Green Egg is also made available to tenants. For the kids, there is also a tree house to play in and the garden to kick a ball in.

The ensuite cupboards to the living room offer plenty of decorative storage space, and the dining bar next to the garden doors is a perfect place to enjoy a glass of wine, for a coffee machine and to consult cookbooks. The sturdy herringbone floor (Hungarian point) runs via ensuite doors from the kitchen to the living room. Here you can enjoy beautiful morning light, and also in the evening the cozy gas fireplace.

Basement
The modern washing machine and dryer are built in at the bottom of the lazy stairs to the basement. Here you can organize the laundry in one go to go back upstairs. These can be left on prior consulation with the owner.

The hall provides access to a spacious, well-ventilated playroom which is also suitable as a studio/workroom, a nice storage room with wine racks, and the utility room with sink.

First floor
Via the stairs you reach the first floor, with 3 airconditioned bedrooms and a large bathroom. The bathroom, accessible from both the landing and the master bedroom, has a large walk-in rain shower, a (whirlpool) bath, a double sink, a designer towel radiator and a toilet. The bathroom has a pleasant, calm appearance due to the soft use of color, the natural materials and the Moroccan tiles.

The master bedroom provides access to a spacious walk-in closet, and through floor-to-ceiling French doors a balcony bordering the quiet backyard. The bedroom at the front is also light due to the large high windows and provides access to a balcony at the front. At the front is also a smaller room, which is perfect as a children's room or study.

Second floor
Via the landing on the 1st floor you go to the second floor with a fixed staircase. Here are 2 more spacious bedrooms, the second bathroom and the stairs to the roof terrace. Here you will also find a pantry kitchen. The bedroom on the garden side is wonderful to use as a quiet home office, and the bedroom at the front with its high roof has an attractive spacious feeling and also gives access to the bathroom with shower, sink and toilet.

Roof terrace
The fixed staircase gives access to the roof terrace, which consists of hardwood decking with sedum planting all around. The sedum, and a thick layer of insulation underneath, ensure good roof insulation.

SURROUNDINGS
Very conveniently located between the Rembrandtpark, the Vondelpark and Oud West; by public transport you are at Schiphol within 20 minutes, and with a taxi you are home from the airport within 12 minutes.

The area around Hoofdweg is quickly developing into a lively neighborhood with more and more delightful coffee spots and cozy restaurants. For daily groceries, you can head to Kinkerstraat. But nowadays, you’ll also find a growing number of hidden gems in the neighborhood where you can enjoy a delicious meal or a good cup of coffee.

Coffee lovers should check out White Label Coffee on Jan Evertsenstraat, where you can drink delicious freshly brewed coffee in a relaxed setting.
For food enthusiasts, there is also plenty of choice nearby. Restaurant Edel, located in a beautiful building by the water of Erasmuspark, offers a charming setting for dinner or drinks. And of course, there is De Hallen, just a few minutes' walk from Hoofdweg. Here, you can explore the Foodhallen and choose from a wide variety of global cuisines, from Asian street food to gourmet burgers, all in the hip, industrial decor of the former tram depot.

In addition to the emerging dining scene, the area offers plenty of green spaces and relaxation options. The Vondelpark, one of Amsterdam’s largest and most famous parks, is just a short bike ride away. Here, you can enjoy walking, jogging, or simply relaxing with a picnic in the sun. Closer even to home is Rembrandtpark, a quieter and more spacious park where you can walk, exercise, or relax in the greenery.

Within a few minutes of cycling, you’ll also reach the Jordaan, where you can stroll through charming streets and discover a wealth of boutiques, cafés, and restaurants. This mix of bustling hospitality, parks, markets, and proximity to the city center makes Hoofdweg and its surroundings an increasingly attractive place to live in Amsterdam.

Here, you can enjoy a dynamic neighborhood with a pleasant balance between city life, up-and-coming hotspots, and tranquil green spaces.

Characteristics/Conditions
Rent: €.6500,- excl. per month
Energy / water advance based on normal consumption: Approximately €450,- per month but depending on actual use
Available on agreement owner for 24 to 36 months
Energy label C
Parking via municipal permit system
Unfurnished (Garden furniture and white goods available)
Furbishings: Curtains, LED lights and floors present. Built-in wardrobes in bedrooms remain
Spread over three floors
Spacious basement. Three balconies. Roof terrace. Back garden & front garden 86m2
Five bedrooms, two bathrooms, 3 toilets, kitchen, pantry kitchen and utility room in basement

Kaart

Features

Offer

Reference number
01145
Asking price
€6,500 per month (upholstered)
Deposit
€12,200
Upholstered
Yes
Upholstered
Upholstered
Status
Rented
Acceptance
By consultation
Offered since
12 September 2025
Last updated
23 October 2025

Construction

Type of residence
House, mansion, semi-detached house
Type of construction
Existing estate
Construction period
1920
Isolations
HR glazing
Roof

Surfaces and content

Plot size
167 m²
Floor Surface
227 m²
Content
785 m³
External surface area
31 m²

Layout

Number of floors
4 (and one basement)
Number of rooms
8 (of which 6 bedrooms)
Number of bathrooms
2 (and 1 separate toilet)

Outdoors

Location
City centre
Near public transport
Near school

Garden

Type
Back yard
Main garden
Yes
Orientation
West
Garden 2 - Type
Front yard
Garden 2 - Orientation
East

Energy consumption

Energy certificate
D

Boiler

Type of boiler
Remeha Calenta CW6
Heating source
Gas
Year of manufacture
2016
Combiboiler
Yes
Boiler ownership
Owned

Features

Water heating
Central heating system
Heating
Central heating
Ventilation method
Mechanical ventilation
Natural ventilation
Kitchen facilities
Built-in equipment
Bathroom facilities Bathroom 1
Bath
Double sink
Toilet
Walkin shower
Bathroom facilities Bathroom 2
Double sink
Shower
Toilet
Has AC
Yes
Has a balcony
Yes
Has cable TV
Yes
Garden available
Yes
Has ventilation
Yes