Nederlands
Rented:Amstelkade 169-4, 1078 AZ Amsterdam - Photo
Rented
+19

Amstelkade 169-4 1078 AZ Amsterdam

  • Apartment
  • 3 rooms
  • 2 bedrooms
  • 1 Bathroom
  • Construction year 1936
  • 70 m² liveable area
  • Furnished
  • A Energy certificate A

Description

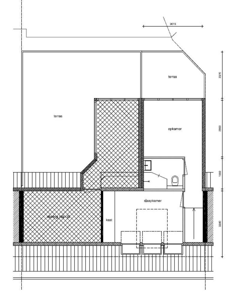
This luxurious one-bedroom apartment with a study is now available, featuring an 8 m² rooftop terrace in a fantastic location!

LAYOUT
Entrance on the fourth floor. Living room with a luxurious open kitchen and a view of the water. An internal staircase leads to the fifth floor, where there is a spacious bedroom with built-in wardrobes. The bathroom includes a walk-in shower. The study/guest room provides access to the 8 m² rooftop terrace.

AREA
The apartment is located on the Amstelkade, with Beatrixpark and De Pijp within walking distance. The location is beautiful, in a quiet neighborhood, yet with all the restaurants and shops of De Pijp and Oud Zuid just around the corner. Public transport is excellent, with many tram and bus connections, and Station Rai is nearby. The main roads are also easily accessible.

STREET NAME
The Amstelkade has been a street on the southern side of the Amstel Canal in the Zuid district of Amsterdam since 1922. The street and the canal are named after the nearby river.

This non-binding rental information has been compiled by our office with the utmost care based on the information provided to us by the landlord. Therefore, we cannot provide any guarantees, nor can we accept any liability for this information in any way. All dimensions are indicative and The Rental Agency accepts no liability for deviations.

Kaart

Features

Offer

Reference number
02073
Asking price
€2,850 per month (furnished)
Deposit
€5,600
Furnishing
Yes
Furnishing
Furnished
Status
Rented
Acceptance
By 02 March 2026
Offered since
30 January 2026
Last updated
16 March 2026

Construction

Type of residence
Apartment, upstairs apartment, apartment
Floor
4th floor
Type of construction
Existing estate
Construction period
1936
Roof materials
Bitumen
Rooftype
Flat
Isolations
Full
Insulated glazing

Surfaces and content

Floor Surface
70 m²
Content
210 m³

Layout

Number of floors
1
Number of rooms
3 (of which 2 bedrooms)
Number of bathrooms
1

Outdoors

Location
At waterside
Near highway
Near public transport
Near school
Residential area

Energy consumption

Energy certificate
A

Features

Water heating
Electric boiler
Heating
Air conditioning
Heat pump
Warm-air heating
Has solar panels
Yes